Accueil > Location T2 > Saint Avertin (37550) > 536 €CC

Logement étudiant à Saint Avertin

Calculer vos aides

Location T2 à Saint Avertin - Vide

536€ /mois cc
Ajouter au coup de coeur

Type de location : Location classique - Meublé : NonCalculez votre aide

Disponibilités : 13/01/2026
Disponibilités : 13/01/2026
Visite virtuelle
Logement étudiant T2 à Saint Avertin (37550) 1/2
Disponibilités : 13/01/2026
Afficher le numéro de téléphone
Demande d'informations

Demande d'informations

Délai de réponse moyen: 24-48h

Je n'ai pas de garant
Recevoir les annonces similaires par email

Informations et réservations

Délai de réponse moyen: 24-48h

Je n'ai pas de garant
Recevoir les annonces similaires par email

LE LOGEMENT

Type de réservation:Location classique
Type de bien:T2
Ameublement:Vide
Classe énergétique:NC
GES:NC
Colocation possible:Non

DESCRIPTION

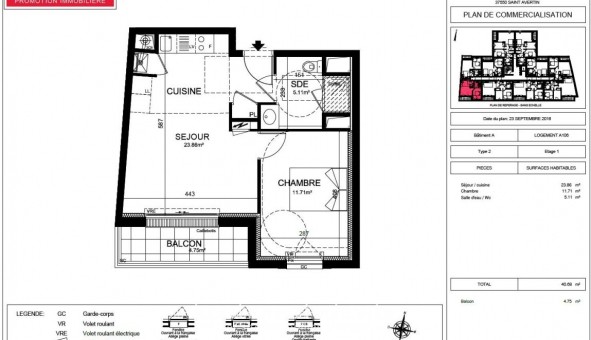
A Saint-Avertin, dans la résidence EGERIE vous est proposé un appartement (n°A 106) de type 2 de 40,68 m² sis au premier étage avec ascenseur. Il comprend : une entrée avec placard desservant une salle d'eau avec WC, meuble-vasque et douche, ainsi qu'un séjour-cuisine de 23,86 m² donnant sur une chambre de 11,71 m² et sur un agréable balcon exposé plein SUD. Place de parking PKA07 sis au rez-de-chaussée. Chauffage et production d'eau chaude par chaudière individuelle gaz à condensation. Entretien parties communes, entretien ascenseur et espaces verts communs, compris dans les provisions sur charges mensuelles et donnant lieu à une régularisation annuelle. Les honoraires de location 447 euros TTC (à la charge du locataire) incluent le montant de rédaction des états des lieux facturé pour 122 euros TTC, après réalisation lors de l'entrée dans les lieux. Pour plus de renseignements, veuillez consulter notre site internet AFEDIM.
Les informations sur les risques auxquels ce bien est exposé sont disponibles sur le site Géorisques :
Référence annonce : 1427074768

GARANTIES ACCEPTÉES
Visale
Garantie Studapart
Garant physique
ALERTE MAIL
Définissez la location que vous recherchez et nous vous enverrons par email toutes les annonces correspondantes
QUARTIER ET TRANSPORTS (Attention: l'adresse et le quartier de ce bien n'ont pas été communiqués par l'annonceur)
POUR VOUS AIDER
Trouvez la CAF à Saint Avertin
Résidences étudiantes à Saint Avertin
Trouvez un job à proximité
Financez votre logement
Liste des écoles à proximité
Découvrir Saint Avertin
A quelles aides avez-vous droit ?
Simulation APL
Signaler un probleme
BIENS SIMILAIRES
Logement étudiant Location T2 Vide Saint Avertin (37550) Location T2 Vide Saint Avertin (37550) A partir de 650€
Logement étudiant Location Chambre Vide Saint Avertin (37550) Location Chambre Vide Saint Avertin (37550) A partir de 948€
Logement étudiant Location T3 Vide Saint Avertin (37550) Location T3 Vide Saint Avertin (37550) A partir de 652€
Besoin d'un logement à Saint Avertin ?
Demande d'informations et réservations
Les aides au logement
Financement étudiant
536€ CC