Accueil > Location T2 > Saint André lez Lille (59350) > 436 €CC

Logement étudiant à Saint André lez Lille

Calculer vos aides

Location T2 à Saint André lez Lille - Vide

436€ /mois cc
Ajouter au coup de coeur

Type de location : Location classique - Meublé : NonCalculez votre aide

Disponibilités : 20/02/2026
Disponibilités : 20/02/2026
Visite virtuelle
Logement étudiant T2 à Saint André lez Lille (59350) 1/2
Disponibilités : 20/02/2026
Afficher le numéro de téléphone
Demande d'informations

Demande d'informations

Délai de réponse moyen: 24-48h

Je n'ai pas de garant
Recevoir les annonces similaires par email

Informations et réservations

Délai de réponse moyen: 24-48h

Je n'ai pas de garant
Recevoir les annonces similaires par email

LE LOGEMENT

Type de réservation:Location classique
Type de bien:T2
Ameublement:Vide
Classe énergétique:NC
GES:NC
Colocation possible:Non

DESCRIPTION

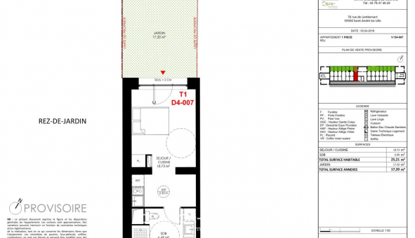
ST ANDRE LEZ LILLE, c'est ici dans la résidence LE DOMAINE D'HESTIA que nous vous proposons un appartement T1 (n°D4-7), d'une superficie de ² situé au rez-de-chaussée avec un jardin de ² orienté Nord-Ouest. 1 parking place extérieur. Chauffage et eau chaude individuel électrique. Eau froide, ascenseur, espaces verts communs et entretien parties communes, compris dans les provisions sur charges mensuelles et donnant lieu à une régularisation annuelle. Les honoraires de location 327 euros TTC (à la charge du locataire) incluent le montant de rédaction des états des lieux facturé 75 euros TTC, après réalisation lors de l'entrée dans les lieux. Pour plus de détails sur ce logement, vous pouvez consulter la fiche descriptive de ce bien, sur notre site internet Afedim.
Les informations sur les risques auxquels ce bien est exposé sont disponibles sur le site Géorisques :
Référence annonce : 1427164642

GARANTIES ACCEPTÉES
Visale
Garantie Studapart
Garant physique
ALERTE MAIL
Définissez la location que vous recherchez et nous vous enverrons par email toutes les annonces correspondantes
QUARTIER ET TRANSPORTS (Attention: l'adresse et le quartier de ce bien n'ont pas été communiqués par l'annonceur)
POUR VOUS AIDER
Trouvez la CAF à Saint André lez Lille
Résidences étudiantes à Saint André lez Lille
Trouvez un job à proximité
Financez votre logement
Liste des écoles à proximité
Découvrir Saint André lez Lille
A quelles aides avez-vous droit ?
Simulation APL
Signaler un probleme
BIENS SIMILAIRES
Logement étudiant Location T4 Vide Saint André lez Lille (59350) Location T4 Vide Saint André lez Lille (59350) A partir de 1 040€
Logement étudiant Location Studio Vide Saint André lez Lille (59350) Location Studio Vide Saint André lez Lille (59350) A partir de 529€
Logement étudiant Location T2 Vide Saint André lez Lille (59350) Location T2 Vide Saint André lez Lille (59350) A partir de 739€
Besoin d'un logement à Saint André lez Lille ?
Demande d'informations et réservations
Les aides au logement
Financement étudiant
436€ CC