Accueil > Location T2 > Rueil Malmaison (92500) > 1 060 €CC

Logement étudiant à Rueil Malmaison

Calculer vos aides

Location T2 à Rueil Malmaison - Vide

1 060€ /mois cc
Ajouter au coup de coeur

Type de location : Location classique - Meublé : NonCalculez votre aide

Disponibilités : 10/12/2025
Disponibilités : 10/12/2025
Visite virtuelle
Logement étudiant T2 à Rueil Malmaison (92500) 1/2
Disponibilités : 10/12/2025
Afficher le numéro de téléphone
Demande d'informations

Demande d'informations

Délai de réponse moyen: 24-48h

Je n'ai pas de garant
Recevoir les annonces similaires par email

Informations et réservations

Délai de réponse moyen: 24-48h

Je n'ai pas de garant
Recevoir les annonces similaires par email

LE LOGEMENT

Type de réservation:Location classique
Type de bien:T2
Ameublement:Vide
Classe énergétique:NC
GES:NC
Colocation possible:Non

DESCRIPTION

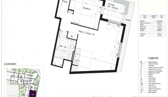
RUEIL MALMAISON, dans la résidence " GEMME ", nous vous proposons un appartement T2 d'une superficie de 50m² situé au rez-de-chaussée du bâtiment A. Il se compose d'une entrée, d'un séjour-cuisine de 28m² donnant sur une terrasse de 4m² et un jardin de 6m², d'une salle d'eau avec WC et d'une chambre de 11m². Au sous sol, un parking n°44. Eau chaude et chauffage individuelle au gaz. Eau froide, entretien parties communes, entretien ascenseur, compris dans les provisions sur charges mensuelles et donnant lieu à une régularisation annuelle. Le montant des honoraires de location est facturé directement au locataire pour 611 euros TTC. Quant au montant des honoraires de rédaction des états des lieux, il est facturé par AFEDIM Gestion Immobilière pour 152 euros TTC, après réalisation, lors de l'entrée dans les lieux. Disponible le 25/12/2025.
Pour plus de détails sur ce logement, vous pouvez consulter la fiche descriptive de ce bien, sur notre site internet AFEDIM.
Les informations sur les risques auxquels ce bien est exposé sont disponibles sur le site Géorisques :
Référence annonce : 1427010855

GARANTIES ACCEPTÉES
Visale
Garantie Studapart
Garant physique
ALERTE MAIL
Définissez la location que vous recherchez et nous vous enverrons par email toutes les annonces correspondantes
QUARTIER ET TRANSPORTS (Attention: l'adresse et le quartier de ce bien n'ont pas été communiqués par l'annonceur)
POUR VOUS AIDER
Trouvez la CAF à Rueil Malmaison
Résidences étudiantes à Rueil Malmaison
Trouvez un job à proximité
Financez votre logement
Liste des écoles à proximité
Découvrir Rueil Malmaison
A quelles aides avez-vous droit ?
Simulation APL
Signaler un probleme
BIENS SIMILAIRES
Logement étudiant Location T2 Vide Rueil Malmaison (92500) Location T2 Vide Rueil Malmaison (92500) A partir de 1 140€
Logement étudiant Location T2 Vide Rueil Malmaison (92500) Location T2 Vide Rueil Malmaison (92500) A partir de 995€
Logement étudiant Location T3 Vide Rueil Malmaison (92500) Location T3 Vide Rueil Malmaison (92500) A partir de 2 500€
Besoin d'un logement à Rueil Malmaison ?
Demande d'informations et réservations
Les aides au logement
Financement étudiant
1 060€ CC