Accueil > Location T2 > Ronchin (59790) > 568 €CC

Logement étudiant à Ronchin

Calculer vos aides

Location T2 à Ronchin - Vide

568€ /mois cc
Ajouter au coup de coeur

Type de location : Location classique - Meublé : NonCalculez votre aide

Disponibilités : 09/02/2026
Disponibilités : 09/02/2026
Visite virtuelle
Logement étudiant T2 à Ronchin (59790) 1/2
Disponibilités : 09/02/2026
Afficher le numéro de téléphone
Demande d'informations

Demande d'informations

Délai de réponse moyen: 24-48h

Je n'ai pas de garant
Recevoir les annonces similaires par email

Informations et réservations

Délai de réponse moyen: 24-48h

Je n'ai pas de garant
Recevoir les annonces similaires par email

LE LOGEMENT

Type de réservation:Location classique
Type de bien:T2
Ameublement:Vide
Classe énergétique:NC
GES:NC
Colocation possible:Non

DESCRIPTION

RONCHIN.
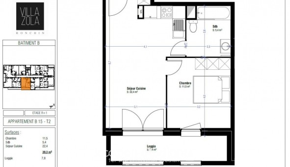
Dans la résidence VILLA ZOLA vous est proposé un appart. (n°B15) de type 2 de m² sis au 1er étage avec ascenseur. Il comprend : une entrée, une pièce de vie de m² avec cuisine ouverte sur séjour et donnant sur une loggia de m², une chambre de m² donnant également sur la loggia, une salle de bain, baignoire et WC. Au sous-sol, un parking.
Chauffage électrique individuel. Eau chaude collective par pompe à chaleur. Eau froide, eau chaude, entretien parties communes, entretien ascenseur et espaces verts communs, compris dans les provisions sur charges mensuelles et donnant lieu à une régularisation annuelle. Logement disponible au 01/04/2024. Les honoraires de location TTC (à la charge du locataire) incluent le montant de rédaction des états des lieux facturé pour 117,00 euros TTC, après réalisation lors de l'entrée dans les lieux. Pour plus de détails sur ce logement, vous pouvez consulter la fiche descriptive de ce bien, sur notre site internet AFEDIM.
Les informations sur les risques auxquels ce bien est exposé sont disponibles sur le site Géorisques :
Référence annonce : 1427139536

GARANTIES ACCEPTÉES
Visale
Garantie Studapart
Garant physique
ALERTE MAIL
Définissez la location que vous recherchez et nous vous enverrons par email toutes les annonces correspondantes
QUARTIER ET TRANSPORTS (Attention: l'adresse et le quartier de ce bien n'ont pas été communiqués par l'annonceur)
POUR VOUS AIDER
Trouvez la CAF à Ronchin
Résidences étudiantes à Ronchin
Trouvez un job à proximité
Financez votre logement
Liste des écoles à proximité
Découvrir Ronchin
A quelles aides avez-vous droit ?
Simulation APL
Signaler un probleme
BIENS SIMILAIRES
Logement étudiant Location T2 Vide Ronchin (59790) Location T2 Vide Ronchin (59790) A partir de 850€
Logement étudiant Location T2 Vide Ronchin (59790) Location T2 Vide Ronchin (59790) A partir de 780€
Logement étudiant Location T2 Meublé Ronchin (59790) Location T2 Meublé Ronchin (59790) A partir de 850€
Besoin d'un logement à Ronchin ?
Demande d'informations et réservations
Les aides au logement
Financement étudiant
568€ CC