Accueil > Location T2 > Rambouillet (78120) > 787 €CC

Logement étudiant à Rambouillet

Calculer vos aides

Location T2 à Rambouillet - Vide

787€ /mois cc
Ajouter au coup de coeur

Type de location : Location classique - Meublé : NonCalculez votre aide

Disponibilités : 05/11/2025
Disponibilités : 05/11/2025
Visite virtuelle
Logement étudiant T2 à Rambouillet (78120) 1/2
Disponibilités : 05/11/2025
Afficher le numéro de téléphone
Demande d'informations

Demande d'informations

Délai de réponse moyen: 24-48h

Je n'ai pas de garant
Recevoir les annonces similaires par email

Informations et réservations

Délai de réponse moyen: 24-48h

Je n'ai pas de garant
Recevoir les annonces similaires par email

LE LOGEMENT

Type de réservation:Location classique
Type de bien:T2
Ameublement:Vide
Classe énergétique:NC
GES:NC
Colocation possible:Non

DESCRIPTION

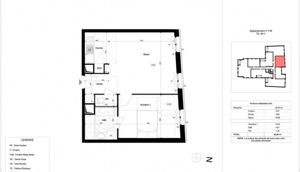
RAMBOUILLET -dans la résidence COEUR ROYAL, nous vous proposons un appartement T2 n°116 de ² situé au 1er étage, composé d'une entrée avec placard, d'un séjour avec un espace cuisine aménagée et équipée (plaques, four, hotte, réfrigérateur, lv) de 26m², d'une chambre de 12m², d'une salle d'eau et d'un WC séparé. Cet appartement dispose également d'une place de parking N°9 en sous-sol. Chauffage et eau chaude collective au gaz. L'entretien des parties communes et des espaces verts est compris dans les provisions sur charges mensuelles et donnant lieu à une régularisation annuelle. Les honoraires de location TTC (à la charge du locataire) incluent le montant de rédaction des états des lieux facturé pour 133 euros TTC, après réalisation lors de l'entrée dans les lieux. Disponible le 23/11/2025. Pour plus de détails sur ce logement, vous pouvez consulter la fiche descriptive de ce bien, sur votre site internet AFEDIM.
Les informations sur les risques auxquels ce bien est exposé sont disponibles sur le site Géorisques :
Référence annonce : 1426930081

BIENS SIMILAIRES
Logement étudiant Location T3 Vide Sonchamp (78120) Location T3 Vide Sonchamp (78120) A partir de 1 150€
Logement étudiant Location Studio Meublé Rambouillet (78120) Location Studio Meublé Rambouillet (78120) A partir de 850€
Logement étudiant Location Studio Vide Rambouillet (78120) Location Studio Vide Rambouillet (78120) A partir de 685€
GARANTIES ACCEPTÉES
Visale
Garantie Studapart
Garant physique
ALERTE MAIL
Définissez la location que vous recherchez et nous vous enverrons par email toutes les annonces correspondantes
QUARTIER ET TRANSPORTS (Attention: l'adresse et le quartier de ce bien n'ont pas été communiqués par l'annonceur)
POUR VOUS AIDER
Trouvez la CAF à Rambouillet
Résidences étudiantes à Rambouillet
Trouvez un job à proximité
Financez votre logement
Liste des écoles à proximité
Découvrir Rambouillet
A quelles aides avez-vous droit ?
Simulation APL
Signaler un probleme
BIENS SIMILAIRES
Logement étudiant Location T2 Vide Clairefontaine en Yvelines (78120) Location T2 Vide Clairefontaine en Yvelines (78120) A partir de 690€
Logement étudiant Location Studio Vide Clairefontaine en Yvelines (78120) Location Studio Vide Clairefontaine en Yvelines (78120) A partir de 605€
Logement étudiant Location T3 Vide Sonchamp (78120) Location T3 Vide Sonchamp (78120) A partir de 1 150€
Besoin d'un logement à Rambouillet ?
Demande d'informations et réservations
Les aides au logement
Financement étudiant
787€ CC