Accueil > Location T2 > Quimper (29000) > 582 €CC

Logement étudiant à Quimper

Calculer vos aides

Location T2 à Quimper - Vide

582€ /mois cc
Ajouter au coup de coeur

Type de location : Location classique - Meublé : NonCalculez votre aide

Disponibilités : 21/12/2025
Disponibilités : 21/12/2025
Visite virtuelle
Logement étudiant T2 à Quimper (29000) 1/2
Disponibilités : 21/12/2025
Afficher le numéro de téléphone
Demande d'informations

Demande d'informations

Délai de réponse moyen: 24-48h

Je n'ai pas de garant
Recevoir les annonces similaires par email

Informations et réservations

Délai de réponse moyen: 24-48h

Je n'ai pas de garant
Recevoir les annonces similaires par email

LE LOGEMENT

Type de réservation:Location classique
Type de bien:T2
Ameublement:Vide
Classe énergétique:NC
GES:NC
Colocation possible:Non

DESCRIPTION

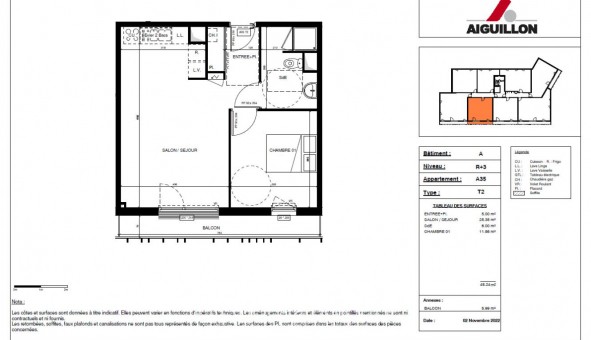
Dans une résidence neuve et sécurisée, venez découvrir cet appartement de type 2 situé au 3e étage.

D'une surface de 48,24 m², il se compose d'un agréable séjour et d'une cuisine ouverte de m², d'une chambre de m², ainsi que d'une salle d'eau avec WC. Vous profiterez également d'un balcon idéale pour vos moments de détente.
L'immeuble est équipé d'un ascenseur et d'un interphone. Le chauffage est en individuel gaz. Une place de stationnement extérieure est incluse.

Le loyer du logement s'élève à 534,42 ?, les charges à 48,82 ? et le loyer du stationnement à ?, soit un montant total mensuel de 621,34 ?.
Le dépôt de garantie est de ?.
Les informations sur les risques auxquels ce bien est exposé sont disponibles sur le site Géorisques : www. georisques. gouv. fr
Référence annonce : 1427034455

GARANTIES ACCEPTÉES
Visale
Garantie Studapart
Garant physique
ALERTE MAIL
Définissez la location que vous recherchez et nous vous enverrons par email toutes les annonces correspondantes
QUARTIER ET TRANSPORTS (Attention: l'adresse et le quartier de ce bien n'ont pas été communiqués par l'annonceur)
POUR VOUS AIDER
Trouvez la CAF à Quimper
Résidences étudiantes à Quimper
Trouvez un job à proximité
Financez votre logement
Liste des écoles à proximité
Découvrir Quimper
A quelles aides avez-vous droit ?
Simulation APL
Signaler un probleme
BIENS SIMILAIRES
Logement étudiant Location T2 Vide Quimper (29000) Location T2 Vide Quimper (29000) A partir de 790€
Logement étudiant Location T3 Vide Quimper (29000) Location T3 Vide Quimper (29000) A partir de 750€
Logement étudiant Location T2 Vide Quimper (29000) Location T2 Vide Quimper (29000) A partir de 650€
Besoin d'un logement à Quimper ?
Demande d'informations et réservations
Les aides au logement
Financement étudiant
582€ CC