Accueil > Location T2 > Puteaux (92800) > 1 812 €CC

Logement étudiant à Puteaux

Calculer vos aides

Location T2 à Puteaux - Vide

1 812€ /mois cc
Ajouter au coup de coeur

Type de location : Location classique - Meublé : NonCalculez votre aide

Disponibilités : 20/03/2026
Disponibilités : 20/03/2026
Visite virtuelle
Logement étudiant T2 à Puteaux (92800) 1/2
Disponibilités : 20/03/2026
Afficher le numéro de téléphone
Demande d'informations

Demande d'informations

Délai de réponse moyen: 24-48h

Je n'ai pas de garant
Recevoir les annonces similaires par email

Informations et réservations

Délai de réponse moyen: 24-48h

Je n'ai pas de garant
Recevoir les annonces similaires par email

LE LOGEMENT

Type de réservation:Location classique
Type de bien:T2
Ameublement:Vide
Classe énergétique:NC
GES:NC
Colocation possible:Non

DESCRIPTION

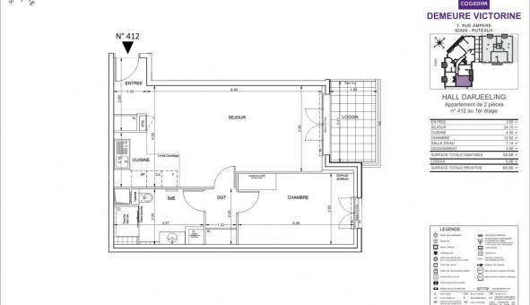
A Puteaux, nous vous proposons cet appartement T2 de ² situé au 1er étage avec ascenseur de la résidence Demeure Victorine. Il se compose d'une entrée de m² avec rangement, d'un séjour de ², d'une cuisine de 4,50 m², d'une salle d'eau de avec WC m², dégagement avec rangement et d'une chambre de ². Pour compléter ce lot, vous disposez également d'une cave et d'un parking. L'appartement est équipé d'un système de chauffage collectif par pompe à chaleur. Les frais d'entretien des parties communes et l'ascenseur sont compris dans les provisions sur charges mensuelles et donnent lieu à une régularisation annuelle. Les honoraires de location TTC (à la charge du locataire) incluent le montant de rédaction des états des lieux facturé pour 164 euros TTC, après réalisation lors de l'entrée dans les lieux. Pour plus de détails sur ce logement, vous pouvez consulter la fiche descriptive de ce bien, sur notre site internet afedim-locations.
Les informations sur les risques auxquels ce bien est exposé sont disponibles sur le site Géorisques :
Référence annonce : 1427228614

BIENS SIMILAIRES
Logement étudiant Location Studio Meublé Puteaux (92800) Location Studio Meublé Puteaux (92800) A partir de 1 000€
Logement étudiant Location T2 Meublé Puteaux (92800) Location T2 Meublé Puteaux (92800) A partir de 1 200€
Logement étudiant Location T2 Meublé Puteaux (92800) Location T2 Meublé Puteaux (92800) A partir de 2 000€
GARANTIES ACCEPTÉES
Visale
Garantie Studapart
Garant physique
ALERTE MAIL
Définissez la location que vous recherchez et nous vous enverrons par email toutes les annonces correspondantes
QUARTIER ET TRANSPORTS (Attention: l'adresse et le quartier de ce bien n'ont pas été communiqués par l'annonceur)
POUR VOUS AIDER
Trouvez la CAF à Puteaux
Résidences étudiantes à Puteaux
Trouvez un job à proximité
Financez votre logement
Liste des écoles à proximité
Découvrir Puteaux
A quelles aides avez-vous droit ?
Simulation APL
Signaler un probleme
BIENS SIMILAIRES
Logement étudiant Location T3 Vide Puteaux (92800) Location T3 Vide Puteaux (92800) A partir de 2 023€
Logement étudiant Location T3 Vide Puteaux (92800) Location T3 Vide Puteaux (92800) A partir de 1 900€
Logement étudiant Location Studio Vide Puteaux (92800) Location Studio Vide Puteaux (92800) A partir de 1 040€
Besoin d'un logement à Puteaux ?
Demande d'informations et réservations
Les aides au logement
Financement étudiant
1 812€ CC