Accueil > Location T2 > Poitiers (86000) > 558 €CC

Logement étudiant à Poitiers

Calculer vos aides

Location T2 à Poitiers - Vide

558€ /mois cc
Ajouter au coup de coeur

Type de location : Location classique - Meublé : NonCalculez votre aide

Disponibilités : 26/11/2025
Disponibilités : 26/11/2025
Visite virtuelle
Logement étudiant T2 à Poitiers (86000) 1/2
Disponibilités : 26/11/2025
Afficher le numéro de téléphone
Demande d'informations

Demande d'informations

Délai de réponse moyen: 24-48h

Je n'ai pas de garant
Recevoir les annonces similaires par email

Informations et réservations

Délai de réponse moyen: 24-48h

Je n'ai pas de garant
Recevoir les annonces similaires par email

LE LOGEMENT

Type de réservation:Location classique
Type de bien:T2
Ameublement:Vide
Classe énergétique:NC
GES:NC
Colocation possible:Non

DESCRIPTION

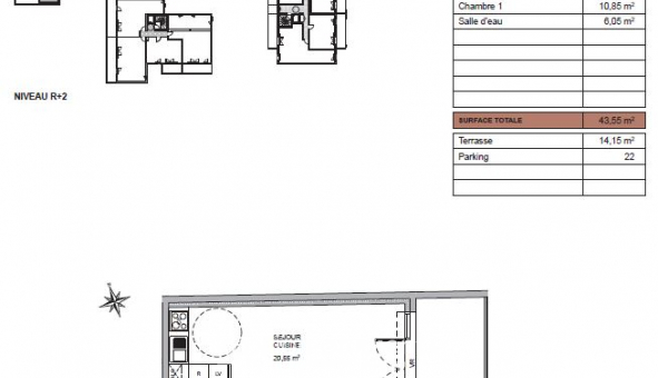
À Poitiers, proche des commerces, des établissements scolaires et des complexes sportifs. Dans la résidence " Le Clos de la Chatonnerie ", un appartement type 2 de m², au deuxième étage de l'aile B. Il comprend, une entrée avec placards, un séjour cuisine aménagée et équipée sur une terrasse de ², une chambre et une salle d'eau avec wc. Au RDC, un emplacement de parking. Eau chaude et chauffage en individuel gaz. Entretien des parties communes, entretien ascenseur et espaces verts communs, compris dans la provision sur charges mensuelle et donnant lieu à une régularisation annuelle. Les honoraires de location TTC (à la charge du locataire) incluent le montant de rédaction des états des lieux facturé pour 130 euros TTC, après réalisation lors de l'entrée dans les lieux. Pour plus de détails sur ce logement, vous pouvez consulter la fiche descriptive de ce bien, sur notre site internet AFEDIM.
Les informations sur les risques auxquels ce bien est exposé sont disponibles sur le site Géorisques :
Référence annonce : 1426977659

BIENS SIMILAIRES
Logement étudiant Location T2 Meublé Poitiers (86000) Location T2 Meublé Poitiers (86000) A partir de 650€
Logement étudiant Location T2 Meublé Poitiers (86000) Location T2 Meublé Poitiers (86000) A partir de 680€
Logement étudiant Location Studio Meublé Poitiers (86000) Location Studio Meublé Poitiers (86000) A partir de 480€
GARANTIES ACCEPTÉES
Visale
Garantie Studapart
Garant physique
ALERTE MAIL
Définissez la location que vous recherchez et nous vous enverrons par email toutes les annonces correspondantes
QUARTIER ET TRANSPORTS (Attention: l'adresse et le quartier de ce bien n'ont pas été communiqués par l'annonceur)
POUR VOUS AIDER
Trouvez la CAF à Poitiers
Résidences étudiantes à Poitiers
Trouvez un job à proximité
Financez votre logement
Liste des écoles à proximité
Découvrir Poitiers
A quelles aides avez-vous droit ?
Simulation APL
Signaler un probleme
BIENS SIMILAIRES
Logement étudiant Location T2 Vide Poitiers (86000) Location T2 Vide Poitiers (86000) A partir de 550€
Logement étudiant Location T2 Vide Poitiers (86000) Location T2 Vide Poitiers (86000) A partir de 560€
Logement étudiant Location T2 Vide Poitiers (86000) Location T2 Vide Poitiers (86000) A partir de 645€
Besoin d'un logement à Poitiers ?
Demande d'informations et réservations
Les aides au logement
Financement étudiant
558€ CC