Accueil > Location T2 > Poitiers (86000) > 569 €CC

Logement étudiant à Poitiers

Calculer vos aides

Location T2 à Poitiers - Vide

569€ /mois cc
Ajouter au coup de coeur

Type de location : Location classique - Meublé : NonCalculez votre aide

Disponibilités : 05/11/2025
Disponibilités : 05/11/2025
Visite virtuelle
Logement étudiant T2 à Poitiers (86000) 1/2
Disponibilités : 05/11/2025
Afficher le numéro de téléphone
Demande d'informations

Demande d'informations

Délai de réponse moyen: 24-48h

Je n'ai pas de garant
Recevoir les annonces similaires par email

Informations et réservations

Délai de réponse moyen: 24-48h

Je n'ai pas de garant
Recevoir les annonces similaires par email

LE LOGEMENT

Type de réservation:Location classique
Type de bien:T2
Ameublement:Vide
Classe énergétique:NC
GES:NC
Colocation possible:Non

DESCRIPTION

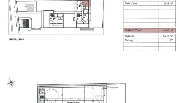
POITIERS - Dans la résidence CLOS DE LA CHATONNERIE, nous vous proposons un appartement T2 d'une superficie de 43m² situé au 3ème étage avec ascenseur, comprenant : Une entrée avec placard, un séjour d'environ 20m² avec coin cuisine aménagé/équipé (évier, plaque de cuisson, hotte), une terrasse de 14m², une chambre, une salle de bain avec WC intégrées. À l'extérieur, un parking n°27. Eau chaude et chauffage individuel gaz. Entretien parties communes, entretien ascenseur et espaces verts communs, compris dans les provisions sur charges mensuelles et donnant lieu à une régularisation annuelle. Les honoraires de location TTC (à la charge du locataire) incluent le montant de rédaction des états des lieux facturé pour 130 euros TTC, après réalisation lors de l'entrée dans les lieux. Disponible IMMEDIATEMENT LOGEMENT VACANT . Pour plus de détails sur ce logement, vous pouvez consulter la fiche descriptive de ce bien, sur votre site internet AFEDIM
Les informations sur les risques auxquels ce bien est exposé sont disponibles sur le site Géorisques :
Référence annonce : 1426930144

BIENS SIMILAIRES
Logement étudiant Location T2 Vide Poitiers (86000) Location T2 Vide Poitiers (86000) A partir de 590€
Logement étudiant Location Studio Meublé Poitiers (86000) Location Studio Meublé Poitiers (86000) A partir de 585€
Logement étudiant Location Studio Meublé Poitiers (86000) Location Studio Meublé Poitiers (86000) A partir de 740€
GARANTIES ACCEPTÉES
Visale
Garantie Studapart
Garant physique
ALERTE MAIL
Définissez la location que vous recherchez et nous vous enverrons par email toutes les annonces correspondantes
QUARTIER ET TRANSPORTS (Attention: l'adresse et le quartier de ce bien n'ont pas été communiqués par l'annonceur)
POUR VOUS AIDER
Trouvez la CAF à Poitiers
Résidences étudiantes à Poitiers
Trouvez un job à proximité
Financez votre logement
Liste des écoles à proximité
Découvrir Poitiers
A quelles aides avez-vous droit ?
Simulation APL
Signaler un probleme
BIENS SIMILAIRES
Logement étudiant Location T2 Vide Poitiers (86000) Location T2 Vide Poitiers (86000) A partir de 628€
Logement étudiant Location T3 Vide Poitiers (86000) Location T3 Vide Poitiers (86000) A partir de 735€
Logement étudiant Location Studio Vide Biard (86000) Location Studio Vide Biard (86000) A partir de 415€
Besoin d'un logement à Poitiers ?
Demande d'informations et réservations
Les aides au logement
Financement étudiant
569€ CC