Accueil > Location T2 > Plappeville (57050) > 626 €CC

Logement étudiant à Plappeville

Calculer vos aides

Location T2 à Plappeville - Vide

626€ /mois cc
Ajouter au coup de coeur

Type de location : Location classique - Meublé : NonCalculez votre aide

Disponibilités : 05/12/2025
Disponibilités : 05/12/2025
Visite virtuelle
Logement étudiant T2 à Plappeville (57050) 1/2
Disponibilités : 05/12/2025
Afficher le numéro de téléphone
Demande d'informations

Demande d'informations

Délai de réponse moyen: 24-48h

Je n'ai pas de garant
Recevoir les annonces similaires par email

Informations et réservations

Délai de réponse moyen: 24-48h

Je n'ai pas de garant
Recevoir les annonces similaires par email

LE LOGEMENT

Type de réservation:Location classique
Type de bien:T2
Ameublement:Vide
Classe énergétique:NC
GES:NC
Colocation possible:Non

DESCRIPTION

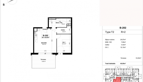
A PLAPPEVILLE, dans la résidence LE CLOS PAPPOLI à 6KM du centre-ville de METZ. Venez découvrir cet appartement T2 n B-202 de ² avec une terrasse de 15m², situé au 2ème étage du bâtiment, avec ascenseur. Il comprend un séjour/cuisine de ², une chambre de ², un cellier et une salle de bain/WC.
Vous disposerez d'un emplacement de stationnement portant le numéro PKG B07.
Chauffage et eau chaude individuels au gaz. Entretien parties communes, ascenseur et espaces verts communs, compris dans les provisions sur charges mensuelles et donnant lieu à une régularisation annuelle. Les honoraires de location de 539 euros TTC (à la charge du locataire) incluent le montant de rédaction des états des lieux facturé pour 147 euros TTC, après réalisation lors de l'entrée dans les lieux. Plus de détails sur notre site afedim. Logement neuf en cours de construction - DPE à venir
Les informations sur les risques auxquels ce bien est exposé sont disponibles sur le site Géorisques :
Référence annonce : 1426999812

BIENS SIMILAIRES
Logement étudiant Location Studio Meublé Metz (57050) Location Studio Meublé Metz (57050) A partir de 400€
Logement étudiant Location T2 Meublé Metz (57050) Location T2 Meublé Metz (57050) A partir de 700€
Logement étudiant Location T3 Vide Metz (57050) Location T3 Vide Metz (57050) A partir de 920€
GARANTIES ACCEPTÉES
Visale
Garantie Studapart
Garant physique
ALERTE MAIL
Définissez la location que vous recherchez et nous vous enverrons par email toutes les annonces correspondantes
QUARTIER ET TRANSPORTS (Attention: l'adresse et le quartier de ce bien n'ont pas été communiqués par l'annonceur)
POUR VOUS AIDER
Trouvez la CAF à Plappeville
Résidences étudiantes à Plappeville
Trouvez un job à proximité
Financez votre logement
Découvrir Plappeville
A quelles aides avez-vous droit ?
Simulation APL
Signaler un probleme
BIENS SIMILAIRES
Logement étudiant Location Studio Meublé Metz (57050) Location Studio Meublé Metz (57050) A partir de 400€
Logement étudiant Location Studio Vide Metz (57050) Location Studio Vide Metz (57050) A partir de 700€
Logement étudiant Location T2 Vide Metz (57050) Location T2 Vide Metz (57050) A partir de 669€
Besoin d'un logement à Plappeville ?
Demande d'informations et réservations
Les aides au logement
Financement étudiant
626€ CC