Accueil > Location T2 > Orléans (45100) > 559 €CC

Logement étudiant à Orléans

Calculer vos aides

Location T2 à Orléans - Vide

559€ /mois cc
Ajouter au coup de coeur

Type de location : Location classique - Meublé : NonCalculez votre aide

Disponibilités : 21/12/2025
Disponibilités : 21/12/2025
Visite virtuelle
Logement étudiant T2 à Orléans (45100) 1/2
Disponibilités : 21/12/2025
Afficher le numéro de téléphone
Demande d'informations

Demande d'informations

Délai de réponse moyen: 24-48h

Je n'ai pas de garant
Recevoir les annonces similaires par email

Informations et réservations

Délai de réponse moyen: 24-48h

Je n'ai pas de garant
Recevoir les annonces similaires par email

LE LOGEMENT

Type de réservation:Location classique
Type de bien:T2
Ameublement:Vide
Classe énergétique:NC
GES:NC
Colocation possible:Non

DESCRIPTION

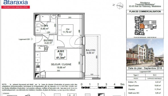
A ORLEANS, proche commerces et commodités dans la Résidence FAUBOURG MADELEINE, nous vous proposons un appartement T2 n°A301 de ² au troisième étage. Pièce de vie de ² avec espace cuisine donnant sur un balcon. L'appartement possède également 1 chambre de ², une entrée avec placard et une salle d'eau de ² avec douche et WC. Une place de parking n°PKS08 est à disposition, au sous-sol. L'entretien des parties communes et des espaces verts est compris dans les provisions sur charges mensuelles et donnant lieu à une régularisation annuelle. Eau chaude et chauffage individuel gaz. Disponibilité du logement 21/12/2025. Les honoraires de location TTC (à la charge de locataire) incluent le montant de rédaction des états des lieux facturé pour 124 euros TTC, après réalisation lors de l'entrée dans les lieux. Pour plus de détails sur ce logement, vous pouvez consulter la fiche descriptive de ce bien, sur notre site internet AFEDIM-locations.
Les informations sur les risques auxquels ce bien est exposé sont disponibles sur le site Géorisques :
Référence annonce : 1427035214

GARANTIES ACCEPTÉES
Visale
Garantie Studapart
Garant physique
ALERTE MAIL
Définissez la location que vous recherchez et nous vous enverrons par email toutes les annonces correspondantes
QUARTIER ET TRANSPORTS (Attention: l'adresse et le quartier de ce bien n'ont pas été communiqués par l'annonceur)
POUR VOUS AIDER
Trouvez la CAF à Orléans
Résidences étudiantes à Orléans
Trouvez un job à proximité
Financez votre logement
Liste des écoles à proximité
Découvrir Orléans
A quelles aides avez-vous droit ?
Simulation APL
Signaler un probleme
BIENS SIMILAIRES
Logement étudiant Location T3 Vide Orléans (45100) Location T3 Vide Orléans (45100) A partir de 713€
Logement étudiant Location T2 Vide Orléans (45100) Location T2 Vide Orléans (45100) A partir de 378€
Logement étudiant Location T3 Vide Orléans (45100) Location T3 Vide Orléans (45100) A partir de 771€
Besoin d'un logement à Orléans ?
Demande d'informations et réservations
Les aides au logement
Financement étudiant
559€ CC