Accueil > Location T2 > Orléans (45100) > 625 €CC

Logement étudiant à Orléans

Calculer vos aides

Location T2 à Orléans - Vide

625€ /mois cc
Ajouter au coup de coeur

Type de location : Location classique - Meublé : NonCalculez votre aide

Disponibilités : 23/11/2025
Disponibilités : 23/11/2025
Visite virtuelle
Logement étudiant T2 à Orléans (45100) 1/2
Disponibilités : 23/11/2025
Afficher le numéro de téléphone
Demande d'informations

Demande d'informations

Délai de réponse moyen: 24-48h

Je n'ai pas de garant
Recevoir les annonces similaires par email

Informations et réservations

Délai de réponse moyen: 24-48h

Je n'ai pas de garant
Recevoir les annonces similaires par email

LE LOGEMENT

Type de réservation:Location classique
Type de bien:T2
Ameublement:Vide
Classe énergétique:NC
GES:NC
Colocation possible:Non

DESCRIPTION

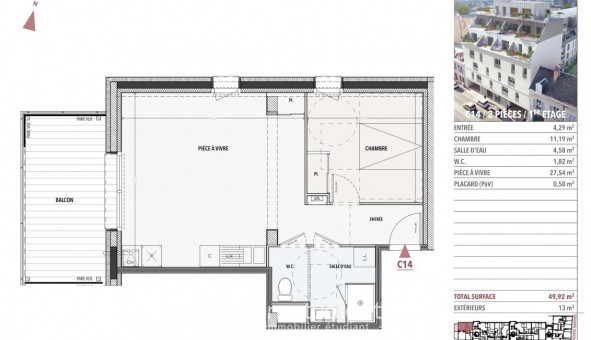
A ORLEANS, à quelques minutes du centre, dans la résidence LE 125 FAUBOURG, nous vous proposons un T2 (n°C14) de m², comprenant une entrée, une pièce à vivre avec placard de ² donnant sur un balcon de 13m², une chambre avec placard de ², une salle d'eau, un WC séparé et un parking n°52. Production d'eau chaude et chauffage individuel au gaz. Entretien parties communes, entretien ascenseur et espaces verts communs, compris dans les provisions sur charges mensuelles et donnant lieu à une régularisation annuelle. Les honoraires de location TTC (à la charge du locataire) incluent le montant de rédaction des états des lieux facturé pour 149 euros TTC, après réalisation lors de l'entrée dans les lieux. Disponible le 23/10/2025 Pour plus de détails sur ce logement, vous pouvez consulter la fiche descriptive de ce bien, sur votre site internet AFEDIM
Les informations sur les risques auxquels ce bien est exposé sont disponibles sur le site Géorisques :
Référence annonce : 1426973259

GARANTIES ACCEPTÉES
Visale
Garantie Studapart
Garant physique
ALERTE MAIL
Définissez la location que vous recherchez et nous vous enverrons par email toutes les annonces correspondantes
QUARTIER ET TRANSPORTS (Attention: l'adresse et le quartier de ce bien n'ont pas été communiqués par l'annonceur)
POUR VOUS AIDER
Trouvez la CAF à Orléans
Résidences étudiantes à Orléans
Trouvez un job à proximité
Financez votre logement
Liste des écoles à proximité
Découvrir Orléans
A quelles aides avez-vous droit ?
Simulation APL
Signaler un probleme
BIENS SIMILAIRES
Logement étudiant Location Studio Vide Orléans (45100) Location Studio Vide Orléans (45100) A partir de 500€
Logement étudiant Location T2 Vide Orléans (45100) Location T2 Vide Orléans (45100) A partir de 750€
Logement étudiant Location Studio Vide Orléans (45100) Location Studio Vide Orléans (45100) A partir de 340€
Besoin d'un logement à Orléans ?
Demande d'informations et réservations
Les aides au logement
Financement étudiant
625€ CC