Accueil > Location T2 > Nantes (44200) > 585 €CC

Logement étudiant à Nantes

Calculer vos aides

Location T2 à Nantes - Vide

585€ /mois cc
Ajouter au coup de coeur

Type de location : Location classique - Meublé : NonCalculez votre aide

Disponibilités : 01/02/2026
Disponibilités : 01/02/2026
Visite virtuelle
Logement étudiant T2 à Nantes (44200) 1/2
Disponibilités : 01/02/2026
Afficher le numéro de téléphone
Demande d'informations

Demande d'informations

Délai de réponse moyen: 24-48h

Je n'ai pas de garant
Recevoir les annonces similaires par email

Informations et réservations

Délai de réponse moyen: 24-48h

Je n'ai pas de garant
Recevoir les annonces similaires par email

LE LOGEMENT

Type de réservation:Location classique
Type de bien:T2
Ameublement:Vide
Classe énergétique:NC
GES:NC
Colocation possible:Non

DESCRIPTION

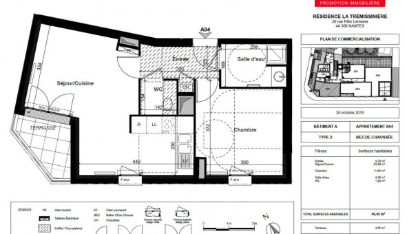
Trémissinière, quartier offrant un cadre de vie agréable à deux pas de l'Erdre. Nous vous proposons un APPARTEMENT T2 n°A04 (lot 22) de m² dans le bâtiment A situé au Rez de chaussée/asc comprenant : une entrée, un séjour avec partie cuisine, une chambre, une salle d'eau, WC. Terrasse de m². Chauffage individuel au gaz. Entretien parties communes, entretien ascenseur et espaces verts communs, compris dans les provisions sur charges mensuelles et donnant lieu à une régularisation annuelle. Les honoraires de location TTC (à la charge du locataire) incluent le montant de rédaction des états des lieux facturé pour 136 euros TTC, après réalisation lors de l'entrée dans les lieux. Disponible le 17/12/2025. Pour plus de détails sur ce logement, vous pouvez consulter la fiche descriptive de ce bien, sur votre site internet AFEDIM
Les informations sur les risques auxquels ce bien est exposé sont disponibles sur le site Géorisques :
Référence annonce : 1427122020

GARANTIES ACCEPTÉES
Visale
Garantie Studapart
Garant physique
ALERTE MAIL
Définissez la location que vous recherchez et nous vous enverrons par email toutes les annonces correspondantes
QUARTIER ET TRANSPORTS (Attention: l'adresse et le quartier de ce bien n'ont pas été communiqués par l'annonceur)
POUR VOUS AIDER
Trouvez la CAF à Nantes
Résidences étudiantes à Nantes
Trouvez un job à proximité
Financez votre logement
Liste des écoles à proximité
Découvrir Nantes
A quelles aides avez-vous droit ?
Simulation APL
Signaler un probleme
BIENS SIMILAIRES
Logement étudiant Location Studio Vide Nantes (44200) Location Studio Vide Nantes (44200) A partir de 645€
Logement étudiant Location Studio Vide Nantes (44200) Location Studio Vide Nantes (44200) A partir de 410€
Logement étudiant Location Studio Vide Nantes (44200) Location Studio Vide Nantes (44200) A partir de 630€
Besoin d'un logement à Nantes ?
Demande d'informations et réservations
Les aides au logement
Financement étudiant
585€ CC