Accueil > Location T2 > Nantes (44200) > 471 €CC

Logement étudiant à Nantes

Calculer vos aides

Location T2 à Nantes - Vide

471€ /mois cc
Ajouter au coup de coeur

Type de location : Location classique - Meublé : NonCalculez votre aide

Disponibilités : 03/11/2025
Disponibilités : 03/11/2025
Visite virtuelle
Logement étudiant T2 à Nantes (44200) 1/2
Disponibilités : 03/11/2025
Afficher le numéro de téléphone
Demande d'informations

Demande d'informations

Délai de réponse moyen: 24-48h

Je n'ai pas de garant
Recevoir les annonces similaires par email

Informations et réservations

Délai de réponse moyen: 24-48h

Je n'ai pas de garant
Recevoir les annonces similaires par email

LE LOGEMENT

Type de réservation:Location classique
Type de bien:T2
Ameublement:Vide
Classe énergétique:NC
GES:NC
Colocation possible:Non

DESCRIPTION

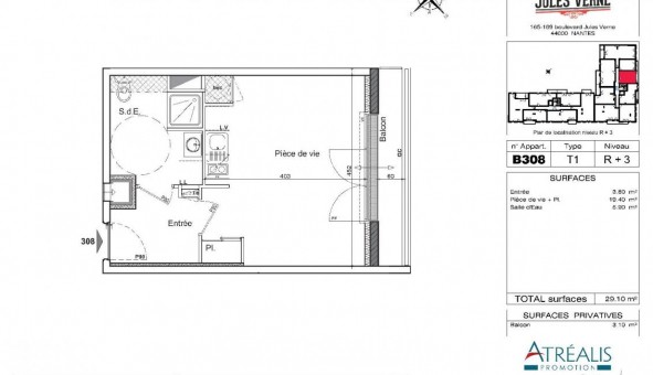
Nantes - A deux pas de la station tram-train Haluchère Batignolles, proche de toutes les commodités et entouré d'espaces verts, dans la résidence "Le Cours Jules Verne", nous vous proposons un appartement T1 n°B308 (lot n°32) de ² avec balcon de ² entièrement refait. Il est situé au 3ème étage avec ascenseur. Il a été entièrement rénové. Il comprend une entrée, une pièce de vie avec cuisine ouverte et une salle d'eau avec WC. Eau chaude et chauffage électrique individuels. Eau froide, entretien parties communes, entretien ascenseur et espaces verts communs, compris dans les provisions sur charges mensuelles et donnant lieu à une régularisation annuelle. Les honoraires de location TTC (à la charge du locataire) incluent le montant de rédaction des états des lieux facturé pour 87 euros TTC, après réalisation lors de l'entrée dans les lieux. Disponible immédiatement.
Les informations sur les risques auxquels ce bien est exposé sont disponibles sur le site Géorisques :
Référence annonce : 1426924574

BIENS SIMILAIRES
Logement étudiant Location T2 Meublé Nantes (44200) Location T2 Meublé Nantes (44200) A partir de 780€
Logement étudiant Location Studio Meublé Nantes (44200) Location Studio Meublé Nantes (44200) A partir de 590€
Logement étudiant Location T3 Meublé Nantes (44200) Location T3 Meublé Nantes (44200) A partir de 925€
GARANTIES ACCEPTÉES
Visale
Garantie Studapart
Garant physique
ALERTE MAIL
Définissez la location que vous recherchez et nous vous enverrons par email toutes les annonces correspondantes
QUARTIER ET TRANSPORTS (Attention: l'adresse et le quartier de ce bien n'ont pas été communiqués par l'annonceur)
POUR VOUS AIDER
Trouvez la CAF à Nantes
Résidences étudiantes à Nantes
Trouvez un job à proximité
Financez votre logement
Liste des écoles à proximité
Découvrir Nantes
A quelles aides avez-vous droit ?
Simulation APL
Signaler un probleme
BIENS SIMILAIRES
Logement étudiant Location T2 Meublé Nantes (44200) Location T2 Meublé Nantes (44200) A partir de 780€
Logement étudiant Location T2 Vide Nantes (44200) Location T2 Vide Nantes (44200) A partir de 750€
Logement étudiant Location T2 Vide Nantes (44200) Location T2 Vide Nantes (44200) A partir de 606€
Besoin d'un logement à Nantes ?
Demande d'informations et réservations
Les aides au logement
Financement étudiant
471€ CC