Accueil > Location T2 > Montpellier (34080) > 642 €CC

Logement étudiant à Montpellier

Calculer vos aides

Location T2 à Montpellier - Vide

642€ /mois cc
Ajouter au coup de coeur

Type de location : Location classique - Meublé : NonCalculez votre aide

Disponibilités : 05/10/2025
Disponibilités : 05/10/2025
Visite virtuelle
Logement étudiant T2 à Montpellier (34080) 1/2
Disponibilités : 05/10/2025
Afficher le numéro de téléphone
Demande d'informations

Demande d'informations

Délai de réponse moyen: 24-48h

Je n'ai pas de garant
Recevoir les annonces similaires par email

Informations et réservations

Délai de réponse moyen: 24-48h

Je n'ai pas de garant
Recevoir les annonces similaires par email

LE LOGEMENT

Type de réservation:Location classique
Type de bien:T2
Ameublement:Vide
Classe énergétique:NC
GES:NC
Colocation possible:Non

DESCRIPTION

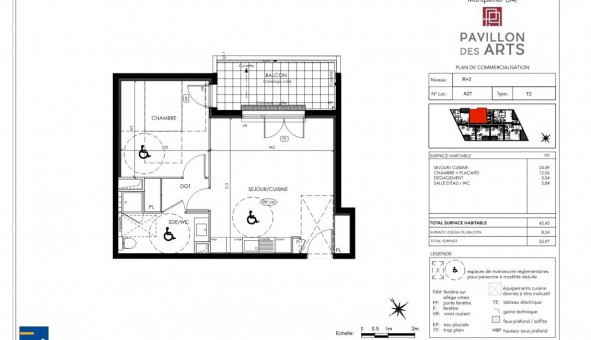
A MONTPELLIER, dans la résidence PAVILLON DES ARTS, nous vous proposons un T2 (n°A27) de ² au 2ème étage, comprenant un séjour ouvert sur cuisine de ² donnant sur un balcon exposé NORD-EST de ², une chambre avec placard de ², une salle d'eau avec WC, un dégagement et un parking n°PK110. Production d'eau chaude et chauffage individuel électrique. Eau froide, entretien parties communes, entretien ascenseur, compris dans les provisions sur charges mensuelles et donnant lieu à une régularisation annuelle. Les honoraires de location TTC (à la charge du locataire) incluent le montant de rédaction des états des lieux facturé pour 136 euros TTC, après réalisation lors de l'entrée dans les lieux. Plus de détails sur notre site AFEDIM.
Les informations sur les risques auxquels ce bien est exposé sont disponibles sur le site Géorisques :
Référence annonce : 1426860923

BIENS SIMILAIRES
Logement étudiant Location T3 Meublé Montpellier (34080) Location T3 Meublé Montpellier (34080) A partir de 1 920€
Logement étudiant Location T2 Meublé Montpellier (34080) Location T2 Meublé Montpellier (34080) A partir de 990€
Logement étudiant Location T2 Meublé Montpellier (34080) Location T2 Meublé Montpellier (34080) A partir de 1 185€
GARANTIES ACCEPTÉES
Visale
Garantie Studapart
Garant physique
ALERTE MAIL
Définissez la location que vous recherchez et nous vous enverrons par email toutes les annonces correspondantes
QUARTIER ET TRANSPORTS (Attention: l'adresse et le quartier de ce bien n'ont pas été communiqués par l'annonceur)
POUR VOUS AIDER
Trouvez la CAF à Montpellier
Résidences étudiantes à Montpellier
Trouvez un job à proximité
Financez votre logement
Liste des écoles à proximité
Découvrir Montpellier
A quelles aides avez-vous droit ?
Simulation APL
Signaler un probleme
BIENS SIMILAIRES
Logement étudiant Location Studio Vide Montpellier (34080) Location Studio Vide Montpellier (34080) A partir de 570€
Logement étudiant Location T2 Vide Montpellier (34080) Location T2 Vide Montpellier (34080) A partir de 711€
Logement étudiant Location T2 Vide Montpellier (34080) Location T2 Vide Montpellier (34080) A partir de 619€
Besoin d'un logement à Montpellier ?
Demande d'informations et réservations
Les aides au logement
Financement étudiant
642€ CC