Accueil > Location T2 > Miramas (13140) > 747 €CC

Logement étudiant à Miramas

Calculer vos aides

Location T2 à Miramas - Vide

747€ /mois cc
Ajouter au coup de coeur

Type de location : Location classique - Meublé : NonCalculez votre aide

Disponibilités : 04/02/2026
Disponibilités : 04/02/2026
Visite virtuelle
Logement étudiant T2 à Miramas (13140) 1/2
Disponibilités : 04/02/2026
Afficher le numéro de téléphone
Demande d'informations

Demande d'informations

Délai de réponse moyen: 24-48h

Je n'ai pas de garant
Recevoir les annonces similaires par email

Informations et réservations

Délai de réponse moyen: 24-48h

Je n'ai pas de garant
Recevoir les annonces similaires par email

LE LOGEMENT

Type de réservation:Location classique
Type de bien:T2
Ameublement:Vide
Classe énergétique:NC
GES:NC
Colocation possible:Non

DESCRIPTION

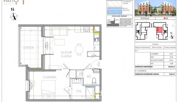
A MIRAMAS, dans la résidence PATIO M, nous vous proposons un appartement T2 B13 de m², comprenant une entrée avec placard, un séjour avec coin cuisine donnant sur une belle loggia, une chambre avec placard et accès privatif à la salle d'eau et un WC séparé. Cet appartement dispose également d'un garage n°55 ainsi que d'un parking n°67. Chauffage individuel électrique. Eau froide, eau chaude entretien parties communes, entretien ascenseur, compris dans les provisions sur charges mensuelles et donnant lieu à une régularisation annuelle. Le montant des honoraires de location est facturé directement au locataire par le partenaire pour 425 euros TTC. Quant au montant des honoraires de rédaction des états des lieux, il est facturé par AFEDIM Gestion Immobilière pour 127 euros TTC, après réalisation, lors de l'entrée dans les lieux. Pour plus de détails, consultez la fiche descriptive, sur notre site internet AFEDIM.
Les informations sur les risques auxquels ce bien est exposé sont disponibles sur le site Géorisques :
Référence annonce : 1427121950

GARANTIES ACCEPTÉES
Visale
Garantie Studapart
Garant physique
ALERTE MAIL
Définissez la location que vous recherchez et nous vous enverrons par email toutes les annonces correspondantes
QUARTIER ET TRANSPORTS (Attention: l'adresse et le quartier de ce bien n'ont pas été communiqués par l'annonceur)
POUR VOUS AIDER
Trouvez la CAF à Miramas
Résidences étudiantes à Miramas
Trouvez un job à proximité
Financez votre logement
Liste des écoles à proximité
Découvrir Miramas
A quelles aides avez-vous droit ?
Simulation APL
Signaler un probleme
BIENS SIMILAIRES
Logement étudiant Location T2 Vide Miramas (13140) Location T2 Vide Miramas (13140) A partir de 550€
Logement étudiant Location T2 Vide Miramas (13140) Location T2 Vide Miramas (13140) A partir de 743€
Logement étudiant Location T2 Vide Miramas (13140) Location T2 Vide Miramas (13140) A partir de 682€
Besoin d'un logement à Miramas ?
Demande d'informations et réservations
Les aides au logement
Financement étudiant
747€ CC