Accueil > Location T2 > Marseille 09ème arrondissement (13009) > 880 €CC

Logement étudiant à Marseille 09ème arrondissement

Calculer vos aides

Location T2 à Marseille 09ème arrondissement - Vide

880€ /mois cc
Ajouter au coup de coeur

Type de location : Location classique - Meublé : NonCalculez votre aide

Disponibilités : 22/10/2025
Disponibilités : 22/10/2025
Visite virtuelle
Logement étudiant T2 à Marseille 09ème arrondissement (13009) 1/2
Disponibilités : 22/10/2025
Afficher le numéro de téléphone
Demande d'informations

Demande d'informations

Délai de réponse moyen: 24-48h

Je n'ai pas de garant
Recevoir les annonces similaires par email

Informations et réservations

Délai de réponse moyen: 24-48h

Je n'ai pas de garant
Recevoir les annonces similaires par email

LE LOGEMENT

Type de réservation:Location classique
Type de bien:T2
Ameublement:Vide
Classe énergétique:NC
GES:NC
Colocation possible:Non

DESCRIPTION

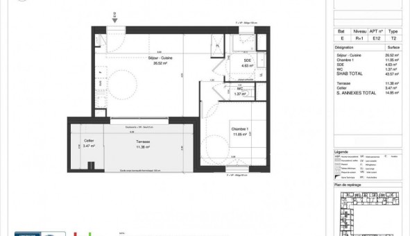
A MARSEILLE, nous vous proposons dans la résidence neuve ENVY 09, un appartement T2 N°E12 de m². Situé au 1er étage avec ascenseur, il comprend un séjour de m² avec cuisine ouverte donnant sur une terrasse de m², une chambre de m², une salle d'eau et un WC séparé. En intérieur, un parking N°PSS069. Eau froide, chauffage et eau chaude collective gaz. Entretien parties communes, ascenseur et espaces verts communs, compris dans les provisions sur charges mensuelles et donnant lieu à une régularisation annuelle. Les honoraires de location TTC (à la charge du locataire) incluent le montant de rédaction des états des lieux facturé pour 130 euros TTC, après réalisation lors de l'entrée dans les lieux. Plus de détails sur notre site internet AFEDIM. Logement neuf en cours de construction -
Les informations sur les risques auxquels ce bien est exposé sont disponibles sur le site Géorisques :
Référence annonce : 1426900225

BIENS SIMILAIRES
Logement étudiant Location T4 Meublé Marseille 09ème arrondissement (13009) Location T4 Meublé Marseille 09ème arrondissement (13009) A partir de 2 100€
Logement étudiant Location T5 Meublé Marseille 09ème arrondissement (13009) Location T5 Meublé Marseille 09ème arrondissement (13009) A partir de 1 800€
Logement étudiant Location Studio Meublé Marseille 09ème arrondissement (13009) Location Studio Meublé Marseille 09ème arrondissement (13009) A partir de 590€
GARANTIES ACCEPTÉES
Visale
Garantie Studapart
Garant physique
ALERTE MAIL
Définissez la location que vous recherchez et nous vous enverrons par email toutes les annonces correspondantes
QUARTIER ET TRANSPORTS (Attention: l'adresse et le quartier de ce bien n'ont pas été communiqués par l'annonceur)
POUR VOUS AIDER
Trouvez la CAF à Marseille 09ème arrondissement
Résidences étudiantes à Marseille 09ème arrondissement
Trouvez un job à proximité
Financez votre logement
Liste des écoles à proximité
Découvrir Marseille 09ème arrondissement
A quelles aides avez-vous droit ?
Simulation APL
Signaler un probleme
BIENS SIMILAIRES
Logement étudiant Location T2 Vide Marseille 09ème arrondissement (13009) Location T2 Vide Marseille 09ème arrondissement (13009) A partir de 950€
Logement étudiant Location T4 Vide Marseille 09ème arrondissement (13009) Location T4 Vide Marseille 09ème arrondissement (13009) A partir de 1 765€
Logement étudiant Location Duplex Vide Marseille 09ème arrondissement (13009) Location Duplex Vide Marseille 09ème arrondissement (13009) A partir de 1 790€
Besoin d'un logement à Marseille 09ème arrondissement ?
Demande d'informations et réservations
Les aides au logement
Financement étudiant
880€ CC