Accueil > Location T2 > Lyon 8ème arrondissement (69008) > 801 €CC

Logement étudiant à Lyon 8ème arrondissement

Calculer vos aides

Location T2 à Lyon 8ème arrondissement - Vide

801€ /mois cc
Ajouter au coup de coeur

Type de location : Location classique - Meublé : NonCalculez votre aide

Disponibilités : 03/04/2026
Disponibilités : 03/04/2026
Visite virtuelle
Logement étudiant T2 à Lyon 8ème arrondissement (69008) 1/2
Disponibilités : 03/04/2026
Afficher le numéro de téléphone
Demande d'informations

Demande d'informations

Délai de réponse moyen: 24-48h

Je n'ai pas de garant
Recevoir les annonces similaires par email

Informations et réservations

Délai de réponse moyen: 24-48h

Je n'ai pas de garant
Recevoir les annonces similaires par email

LE LOGEMENT

Type de réservation:Location classique
Type de bien:T2
Ameublement:Vide
Classe énergétique:NC
GES:NC
Colocation possible:Non

DESCRIPTION

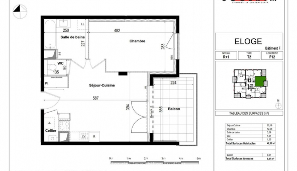
LYON - Dans le quartier "MERMOZ", à proximité immédiate du tramway, appartement T2 de ² situé au 1er étage avec ascenseur, proche des commerces et de toutes commodités. Il se compose d'une entrée avec un cellier, d'une pièce à vivre de m² avec cuisine aménagée ouverte sur un grand balcon de m², d'une chambre de m², d'une salle de bains et de wc séparés. Un garage en sous sol. Chauffage et eau chaude individuels gaz. Eau froide, entretien ascenseur, entretien parties communes et espaces verts communs, compris dans les provisions sur charges mensuelles et donnant lieu à une régularisation annuelle. Les honoraires de location TTC (à la charge du locataire) incluent le montant de rédaction des états des lieux facturé 129 EUR TTC, après réalisation lors de l'entrée dans les lieux. Pour plus de détails sur ce logement, vous pouvez consulter la fiche descriptive de ce bien, sur notre site internet afedim.
Les informations sur les risques auxquels ce bien est exposé sont disponibles sur le site Géorisques :
Référence annonce : 1427257709

BIENS SIMILAIRES
Logement étudiant Location T2 Meublé Lyon 8ème arrondissement (69008) Location T2 Meublé Lyon 8ème arrondissement (69008) A partir de 1 250€
Logement étudiant Location T3 Meublé Lyon 8ème arrondissement (69008) Location T3 Meublé Lyon 8ème arrondissement (69008) A partir de 1 294€
Logement étudiant Location Studio Meublé Lyon 8ème arrondissement (69008) Location Studio Meublé Lyon 8ème arrondissement (69008) A partir de 606€
GARANTIES ACCEPTÉES
Visale
Garantie Studapart
Garant physique
ALERTE MAIL
Définissez la location que vous recherchez et nous vous enverrons par email toutes les annonces correspondantes
QUARTIER ET TRANSPORTS (Attention: l'adresse et le quartier de ce bien n'ont pas été communiqués par l'annonceur)
POUR VOUS AIDER
Trouvez la CAF à Lyon 8ème arrondissement
Résidences étudiantes à Lyon 8ème arrondissement
Trouvez un job à proximité
Financez votre logement
Liste des écoles à proximité
Découvrir Lyon 8ème arrondissement
A quelles aides avez-vous droit ?
Simulation APL
Signaler un probleme
BIENS SIMILAIRES
Logement étudiant Location T2 Vide Lyon 8ème arrondissement (69008) Location T2 Vide Lyon 8ème arrondissement (69008) A partir de 763€
Logement étudiant Location T2 Vide Lyon 8ème arrondissement (69008) Location T2 Vide Lyon 8ème arrondissement (69008) A partir de 886€
Logement étudiant Location Studio Vide Lyon 8ème arrondissement (69008) Location Studio Vide Lyon 8ème arrondissement (69008) A partir de 661€
Besoin d'un logement à Lyon 8ème arrondissement ?
Demande d'informations et réservations
Les aides au logement
Financement étudiant
801€ CC