Accueil > Location T2 > Luisant (28600) > 585 €CC

Logement étudiant à Luisant

Calculer vos aides

Location T2 à Luisant - Vide

585€ /mois cc
Ajouter au coup de coeur

Type de location : Location classique - Meublé : NonCalculez votre aide

Disponibilités : 25/12/2025
Disponibilités : 25/12/2025
Visite virtuelle
Logement étudiant T2 à Luisant (28600) 1/2
Disponibilités : 25/12/2025
Afficher le numéro de téléphone
Demande d'informations

Demande d'informations

Délai de réponse moyen: 24-48h

Je n'ai pas de garant
Recevoir les annonces similaires par email

Informations et réservations

Délai de réponse moyen: 24-48h

Je n'ai pas de garant
Recevoir les annonces similaires par email

LE LOGEMENT

Type de réservation:Location classique
Type de bien:T2
Ameublement:Vide
Classe énergétique:NC
GES:NC
Colocation possible:Non

DESCRIPTION

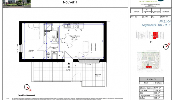
A LUISANT, dans la résidence NOUVEL'R, nous vous proposons un appartement T2 (n°E104), d'une superficie de m² situé au 1er étage. Il se compose d'une entrée avec placard, d'un séjour-cuisine de m² donnant sur une terrasse de m², d'une chambre de m², et d'une salle d'eau avec WC. Chauffage et eau chaude individuels gaz. Parking extérieur 05-PK252-05PK251. Eau froide, ascenseur, espaces verts communs et entretien parties communes, compris dans les provisions sur charges mensuelles et donnant lieu à une régularisation annuelle. Les honoraires de location TTC (à la charge du locataire) incluent le montant de rédaction des états des lieux facturé 125 euros TTC, après réalisation lors de l'entrée dans les lieux. Disponible le 13/03/2026. Plus de détails sur ce logement sur notre site internet AFEDIM.
Les informations sur les risques auxquels ce bien est exposé sont disponibles sur le site Géorisques :
Référence annonce : 1427042706

GARANTIES ACCEPTÉES
Visale
Garantie Studapart
Garant physique
ALERTE MAIL
Définissez la location que vous recherchez et nous vous enverrons par email toutes les annonces correspondantes
QUARTIER ET TRANSPORTS (Attention: l'adresse et le quartier de ce bien n'ont pas été communiqués par l'annonceur)
POUR VOUS AIDER
Trouvez la CAF à Luisant
Résidences étudiantes à Luisant
Trouvez un job à proximité
Financez votre logement
Liste des écoles à proximité
Découvrir Luisant
A quelles aides avez-vous droit ?
Simulation APL
Signaler un probleme
BIENS SIMILAIRES
Logement étudiant Location T4 Vide Luisant (28600) Location T4 Vide Luisant (28600) A partir de 1 015€
Logement étudiant Location T2 Vide Luisant (28600) Location T2 Vide Luisant (28600) A partir de 560€
Logement étudiant Location T2 Vide Luisant (28600) Location T2 Vide Luisant (28600) A partir de 595€
Besoin d'un logement à Luisant ?
Demande d'informations et réservations
Les aides au logement
Financement étudiant
585€ CC