Accueil > Location T2 > Lucé (28110) > 634 €CC

Logement étudiant à Lucé

Calculer vos aides

Location T2 à Lucé - Vide

634€ /mois cc
Ajouter au coup de coeur

Type de location : Location classique - Meublé : NonCalculez votre aide

Disponibilités : 17/12/2025
Disponibilités : 17/12/2025
Visite virtuelle
Logement étudiant T2 à Lucé (28110) 1/2
Disponibilités : 17/12/2025
Afficher le numéro de téléphone
Demande d'informations

Demande d'informations

Délai de réponse moyen: 24-48h

Je n'ai pas de garant
Recevoir les annonces similaires par email

Informations et réservations

Délai de réponse moyen: 24-48h

Je n'ai pas de garant
Recevoir les annonces similaires par email

LE LOGEMENT

Type de réservation:Location classique
Type de bien:T2
Ameublement:Vide
Classe énergétique:NC
GES:NC
Colocation possible:Non

DESCRIPTION

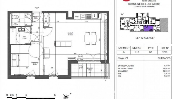
LUCE - Dans la résidence LE "32 AVENUE", nous vous proposons un appartement T2 d'une superficie de 57m² situé au 2ème étage avec ascenseur, comprenant : Une entrée avec placard, un séjour d'environ 34m² avec coin cuisine aménagé/équipé (évier, hotte, plaque de cuisson, four), un balcon de 5m², une chambre, une salle de bain et WC séparée. Un parking n°21 et n°22. Eau chaude et chauffage individuel gaz. Entretien parties communes, entretien ascenseur et espaces verts communs, compris dans les provisions sur charges mensuelles et donnant lieu à une régularisation annuelle. Les honoraires de location TTC (à la charge du locataire) incluent le montant de rédaction des états des lieux facturé pour 171 euros TTC, après réalisation lors de l'entrée dans les lieux. Disponible le 31/07/2025. Pour plus de détails sur ce logement, vous pouvez consulter la fiche descriptive de ce bien, sur votre site internet AFEDIM
Les informations sur les risques auxquels ce bien est exposé sont disponibles sur le site Géorisques :
Référence annonce : 1427026421

GARANTIES ACCEPTÉES
Visale
Garantie Studapart
Garant physique
ALERTE MAIL
Définissez la location que vous recherchez et nous vous enverrons par email toutes les annonces correspondantes
QUARTIER ET TRANSPORTS (Attention: l'adresse et le quartier de ce bien n'ont pas été communiqués par l'annonceur)
POUR VOUS AIDER
Trouvez la CAF à Lucé
Résidences étudiantes à Lucé
Trouvez un job à proximité
Financez votre logement
Liste des écoles à proximité
Découvrir Lucé
A quelles aides avez-vous droit ?
Simulation APL
Signaler un probleme
BIENS SIMILAIRES
Logement étudiant Location T3 Vide Lucé (28110) Location T3 Vide Lucé (28110) A partir de 870€
Logement étudiant Location Studio Vide Lucé (28110) Location Studio Vide Lucé (28110) A partir de 510€
Logement étudiant Location T2 Vide Lucé (28110) Location T2 Vide Lucé (28110) A partir de 628€
Besoin d'un logement à Lucé ?
Demande d'informations et réservations
Les aides au logement
Financement étudiant
634€ CC