Accueil > Location T2 > Louviers (27400) > 440 €CC

Logement étudiant à Louviers

Calculer vos aides

Location T2 à Louviers - Vide

440€ /mois cc
Ajouter au coup de coeur

Type de location : Location classique - Meublé : NonCalculez votre aide

Disponibilités : 15/10/2025
Disponibilités : 15/10/2025
Visite virtuelle
Logement étudiant T2 à Louviers (27400) 1/2
Disponibilités : 15/10/2025
Afficher le numéro de téléphone
Demande d'informations

Demande d'informations

Délai de réponse moyen: 24-48h

Je n'ai pas de garant
Recevoir les annonces similaires par email

Informations et réservations

Délai de réponse moyen: 24-48h

Je n'ai pas de garant
Recevoir les annonces similaires par email

LE LOGEMENT

Type de réservation:Location classique
Type de bien:T2
Ameublement:Vide
Classe énergétique:NC
GES:NC
Colocation possible:Non

DESCRIPTION

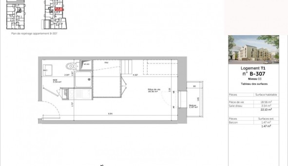
A LOUVIERS, dans la résidence neuve REVERSO LOUVIERS , située à proximité du cour historique de la ville et de toutes les commodités, nous vous proposons un appartement T1 n°B-307 d'environ ² situé au 3e étage avec ascenseur, comprenant : une pièce de vie de ² avec coin cuisine, donnant accès à un balcon de ², une salle d'eau équipée. Eau chaude et chauffage collectifs au gaz. Entretien parties communes, entretien ascenseur et espaces verts communs, compris dans les provisions sur charges mensuelles et donnant lieu à une régularisation annuelle. Les honoraires de location TTC (à la charge du locataire) incluent le montant de rédaction des états des lieux facturé pour 66 euros TTC, après réalisation lors de l'entrée dans les lieux. Disponibilité prévisionnelle au 31/12/2025. Pour plus de détails sur ce logement, vous pouvez consulter la fiche descriptive de ce bien, sur notre site internet AFEDIM. DPE à venir - logement en cours de construction.
Les informations sur les risques auxquels ce bien est exposé sont disponibles sur le site Géorisques :
Référence annonce : 1426881684

GARANTIES ACCEPTÉES
Visale
Garantie Studapart
Garant physique
ALERTE MAIL
Définissez la location que vous recherchez et nous vous enverrons par email toutes les annonces correspondantes
QUARTIER ET TRANSPORTS (Attention: l'adresse et le quartier de ce bien n'ont pas été communiqués par l'annonceur)
POUR VOUS AIDER
Trouvez la CAF à Louviers
Résidences étudiantes à Louviers
Trouvez un job à proximité
Financez votre logement
Liste des écoles à proximité
Découvrir Louviers
A quelles aides avez-vous droit ?
Simulation APL
Signaler un probleme
BIENS SIMILAIRES
Logement étudiant Location T2 Vide Louviers (27400) Location T2 Vide Louviers (27400) A partir de 405€
Logement étudiant Location T2 Vide Louviers (27400) Location T2 Vide Louviers (27400) A partir de 405€
Logement étudiant Location Studio Vide Acquigny (27400) Location Studio Vide Acquigny (27400) A partir de 480€
Besoin d'un logement à Louviers ?
Demande d'informations et réservations
Les aides au logement
Financement étudiant
440€ CC