Accueil > Location T2 > Loos (59120) > 621 €CC

Logement étudiant à Loos

Calculer vos aides

Location T2 à Loos - Vide

621€ /mois cc
Ajouter au coup de coeur

Type de location : Location classique - Meublé : NonCalculez votre aide

Disponibilités : 23/11/2025
Disponibilités : 23/11/2025
Visite virtuelle
Logement étudiant T2 à Loos (59120) 1/2
Disponibilités : 23/11/2025
Afficher le numéro de téléphone
Demande d'informations

Demande d'informations

Délai de réponse moyen: 24-48h

Je n'ai pas de garant
Recevoir les annonces similaires par email

Informations et réservations

Délai de réponse moyen: 24-48h

Je n'ai pas de garant
Recevoir les annonces similaires par email

LE LOGEMENT

Type de réservation:Location classique
Type de bien:T2
Ameublement:Vide
Classe énergétique:NC
GES:NC
Colocation possible:Non

DESCRIPTION

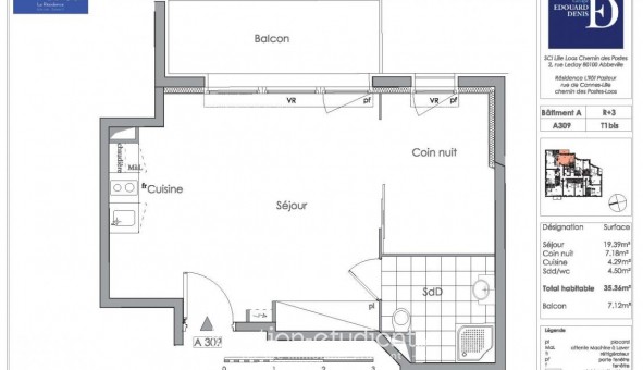
A LOOS, dans la résidence L'ILOT PASTEUR nous vous proposons un appartement T1 n°A309 de ² situé au 3ème étage avec balcon de ² du bâtiment A. L'appartement se compose d'un séjour de ², une cuisine de ² (plaque de cuisson, four, hotte, réfrigérateur), un coin nuit de ², une salle d'eau avec WC de ². Jouissance exclusive d'un parking au rez-de-chaussée du bâtiment B n°B15. Eau chaude et chauffage (individuel). Entretien parties communes, entretien ascenseur et espaces verts communs, compris dans les provisions sur charges mensuelles et donnant lieu à une régularisation annuelle. Les honoraires de location TTC (à la charge du locataire) incluent le montant de rédaction des états des lieux facturé pour 106euros TTC, après réalisation lors de l'entrée dans les lieux. Disponible le 17/11/ plus de détails sur ce logement, vous pouvez consulter la fiche descriptive de ce bien, sur votre site internet AFEDIM.
Les informations sur les risques auxquels ce bien est exposé sont disponibles sur le site Géorisques :
Référence annonce : 1426973279

GARANTIES ACCEPTÉES
Visale
Garantie Studapart
Garant physique
ALERTE MAIL
Définissez la location que vous recherchez et nous vous enverrons par email toutes les annonces correspondantes
QUARTIER ET TRANSPORTS (Attention: l'adresse et le quartier de ce bien n'ont pas été communiqués par l'annonceur)
POUR VOUS AIDER
Trouvez la CAF à Loos
Résidences étudiantes à Loos
Trouvez un job à proximité
Financez votre logement
Liste des écoles à proximité
Découvrir Loos
A quelles aides avez-vous droit ?
Simulation APL
Signaler un probleme
BIENS SIMILAIRES
Logement étudiant Location T2 Vide Loos (59120) Location T2 Vide Loos (59120) A partir de 781€
Logement étudiant Location Duplex Vide Loos (59120) Location Duplex Vide Loos (59120) A partir de 1 110€
Logement étudiant Location Duplex Vide Loos (59120) Location Duplex Vide Loos (59120) A partir de 1 100€
Besoin d'un logement à Loos ?
Demande d'informations et réservations
Les aides au logement
Financement étudiant
621€ CC