Type de logement
Les derniers articles
Les articles par catégorie
Le baromètre
L'indice des loyers
L'argus des prix
Calculer vos aides
Type de location : Location classique - Meublé : Non
Calculez votre aide

1/2
Afficher le numéro de téléphone
Demande d'informations
Informations et réservations
Délai de réponse moyen: 24-48h
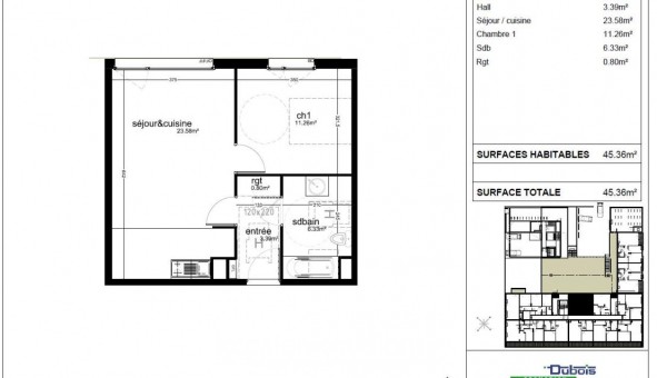
A LILLE, proche du centre, des commerces, du métro, des bus et axes autoroutiers, dans la résidence "Les Rives blanches", nous vous proposons un appartement T2 n°B2 (lot n°201) de 45,36m² situé au rez-de-chaussée du bâtiment B2, avec ascenseur. Il comprend une entrée, un séjour avec cuisine ouverte, une chambre, une salle de bains avec wc. Au sous-sol, un parking n°B P12 (lot n°335). Eau chaude, eau froide et chauffage collectif au gaz, entretien des parties communes compris dans les provisions sur charges mensuelles et donnant lieu à une régularisation annuelle.
Les honoraires de location TTC (à la charge du locataire) incluent le montant de rédaction des états des lieux facturé pour 137 euros TTC, après réalisation lors de l'entrée dans les lieux.
Pour plus de détails sur ce logement, vous pouvez consulter la fiche descriptive de ce bien, sur notre site internet Afedim.
Les informations sur les risques auxquels ce bien est exposé sont disponibles sur le site Géorisques :
Référence annonce : 1427087948
Face aux difficultés rencontrées par les jeunes pour se loger, Location-etudiant.fr permet aux étudiants et aux jeunes actifs de trouver leur logement étudiant dans de nombreuses villes comme Paris, Lyon, Marseille, Toulouse, Lille ou Nantes. L'étudiant peut choisir parmi les 5 grands types de logement étudiant: les petites annonces de particuliers à particuliers, sans frais d'agence, les résidences étudiantes privées, les chambres chez l'habitant, la colocation et les cités U. Exclusivement dédié à la location de petites surfaces les particuliers bailleurs peuvent déposer leur annonces de studio, T1, 2 et 3 pièces directement sur le site. Des informations et guides pratiques sont disponibles pour tous les étudiants qui louent un studio ou un 2 pièces.
Immobilier Neuf Toulouse | Liste des Crous | Nos auteurs | Les villes de France | Colocations | Annuaire des agences immobilières | Informations sur les principales villes étudiantes | Liste des groupes de résidences étudiantes | Les caisses d'allocations familiales (CAF) en France | Les écoles et universités en France | Biens Loués | Résidences étudiantes
© METRES CARRES COM - Tous droits réservés - 2026


