Accueil > Location T2 > Lille (59800) > 607 €CC

Logement étudiant à Lille

Calculer vos aides

Location T2 à Lille - Vide

607€ /mois cc
Ajouter au coup de coeur

Type de location : Location classique - Meublé : NonCalculez votre aide

Disponibilités : 04/11/2025
Disponibilités : 04/11/2025
Visite virtuelle
Logement étudiant T2 à Lille (59800) 1/2
Disponibilités : 04/11/2025
Afficher le numéro de téléphone
Demande d'informations

Demande d'informations

Délai de réponse moyen: 24-48h

Je n'ai pas de garant
Recevoir les annonces similaires par email

Informations et réservations

Délai de réponse moyen: 24-48h

Je n'ai pas de garant
Recevoir les annonces similaires par email

LE LOGEMENT

Type de réservation:Location classique
Type de bien:T2
Ameublement:Vide
Classe énergétique:NC
GES:NC
Colocation possible:Non

DESCRIPTION

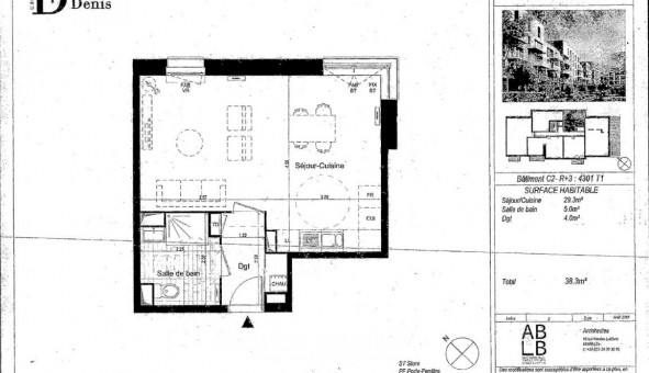
A LILLE, dans la résidence LA PARENTHESE VERTE, nous vous proposons un T1 neuf (n°4301) de m², comprenant un séjour de ouvert sur cuisine de ², une salle d'eau de 5m² avec WC et un dégagement. Production d'eau chaude et chauffage individuel au gaz. Eau froide, entretien parties communes, entretien ascenseur, compris dans les provisions sur charges mensuelles et donnant lieu à une régularisation annuelle.
Les honoraires de location TTC (à la charge du locataire) incluent le montant de rédaction des états des lieux facturé pour 114,00 euros TTC, après réalisation lors de l'entrée dans les lieux. Disponibilité janvier 2025. Pour plus de détails sur ce logement, vous pouvez consulter la fiche descriptive de ce bien, sur notre site internet afedim. Logement en cours de construction - DPE à venir.
Les informations sur les risques auxquels ce bien est exposé sont disponibles sur le site Géorisques :
Référence annonce : 1426925185

BIENS SIMILAIRES
Logement étudiant Location Studio Meublé Lille (59800) Location Studio Meublé Lille (59800) A partir de 595€
Logement étudiant Location Studio Meublé Lille (59800) Location Studio Meublé Lille (59800) A partir de 650€
Logement étudiant Location T2 Meublé Lille (59800) Location T2 Meublé Lille (59800) A partir de 900€
GARANTIES ACCEPTÉES
Visale
Garantie Studapart
Garant physique
ALERTE MAIL
Définissez la location que vous recherchez et nous vous enverrons par email toutes les annonces correspondantes
QUARTIER ET TRANSPORTS (Attention: l'adresse et le quartier de ce bien n'ont pas été communiqués par l'annonceur)
POUR VOUS AIDER
Trouvez la CAF à Lille
Résidences étudiantes à Lille
Trouvez un job à proximité
Financez votre logement
Liste des écoles à proximité
Découvrir Lille
A quelles aides avez-vous droit ?
Simulation APL
Signaler un probleme
BIENS SIMILAIRES
Logement étudiant Location Studio Vide Lille (59800) Location Studio Vide Lille (59800) A partir de 450€
Logement étudiant Location T3 Vide Lille (59800) Location T3 Vide Lille (59800) A partir de 1 260€
Logement étudiant Location T2 Vide Lille (59800) Location T2 Vide Lille (59800) A partir de 766€
Besoin d'un logement à Lille ?
Demande d'informations et réservations
Les aides au logement
Financement étudiant
607€ CC