Accueil > Location T2 > Lens (62300) > 467 €CC

Logement étudiant à Lens

Calculer vos aides

Location T2 à Lens - Vide

467€ /mois cc
Ajouter au coup de coeur

Type de location : Location classique - Meublé : NonCalculez votre aide

Disponibilités : 26/03/2026
Disponibilités : 26/03/2026
Visite virtuelle
Logement étudiant T2 à Lens (62300) 1/2
Disponibilités : 26/03/2026
Afficher le numéro de téléphone
Demande d'informations

Demande d'informations

Délai de réponse moyen: 24-48h

Je n'ai pas de garant
Recevoir les annonces similaires par email

Informations et réservations

Délai de réponse moyen: 24-48h

Je n'ai pas de garant
Recevoir les annonces similaires par email

LE LOGEMENT

Type de réservation:Location classique
Type de bien:T2
Ameublement:Vide
Classe énergétique:NC
GES:NC
Colocation possible:Non

DESCRIPTION

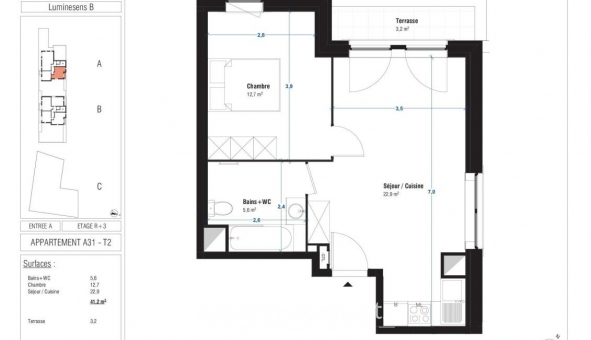
Lens, Dans la Résidence LUMINESENS, vous est proposé un appartement (n°A31) de type 2 de ² au 3ème étage avec ascenseur du bâtiment B. Il est composé d'une pièce de vie avec cuisine équipée (four, hotte, meuble haut et bas, évier inox et plaque vitrocéramique) donnant sur une terrasse de ², une chambre, salle de bain avec WC. Stationnement extérieur. Eau chaude collective et chauffage individuel. Entretien parties communes, entretien ascenseur et espaces verts communs, compris dans les provisions sur charges mensuelles et donnant lieu à une régularisation annuelle. Les honoraires de location TTC (à la charge du locataire) incluent le montant de rédaction des états des lieux facturé pour 124euros TTC, après réalisation lors de l'entrée dans les lieux. Disponible le 21/04/2026. Pour plus de détails sur ce logement, vous pouvez consulter la fiche descriptive de ce bien, sur votre site internet AFEDIM.
Les informations sur les risques auxquels ce bien est exposé sont disponibles sur le site Géorisques :
Référence annonce : 1427242429

GARANTIES ACCEPTÉES
Visale
Garantie Studapart
Garant physique
ALERTE MAIL
Définissez la location que vous recherchez et nous vous enverrons par email toutes les annonces correspondantes
QUARTIER ET TRANSPORTS (Attention: l'adresse et le quartier de ce bien n'ont pas été communiqués par l'annonceur)
POUR VOUS AIDER
Trouvez la CAF à Lens
Résidences étudiantes à Lens
Trouvez un job à proximité
Financez votre logement
Liste des écoles à proximité
Découvrir Lens
A quelles aides avez-vous droit ?
Simulation APL
Signaler un probleme
BIENS SIMILAIRES
Logement étudiant Location T3 Vide Lens (62300) Location T3 Vide Lens (62300) A partir de 737€
Logement étudiant Location T2 Vide Lens (62300) Location T2 Vide Lens (62300) A partir de 567€
Logement étudiant Location T3 Vide Éleu dit Leauwette (62300) Location T3 Vide Éleu dit Leauwette (62300) A partir de 790€
Besoin d'un logement à Lens ?
Demande d'informations et réservations
Les aides au logement
Financement étudiant
467€ CC