 Calculer vos aides
Calculer vos aides
			 
				Type de location : Location classique - Meublé : Non Calculez votre aide
Calculez votre aide
 Afficher le numéro de téléphone
Afficher le numéro de téléphone
				 Demande d'informations
Demande d'informations
				Demande d'informations
Délai de réponse moyen: 24-48h
Informations et réservations
Délai de réponse moyen: 24-48h
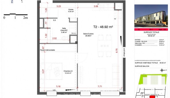
            Le Taillan Medoc, Résidence   L'ECLA  , nous vous proposons un appartement T2 n°105 d'une superficie de 48,92m² situé au 1er étage avec ascenseur, comprenant : Une entrée, un séjour d'environ 26,98m² avec coin cuisine aménagé/équipé (plaque de cuisson, hotte), une chambre, une salle d'eau avec WC. En extérieur, un parking n°8. Eau froide individuelle. Eau chaude et chauffage individuel au gaz. Entretien parties communes, entretien ascenseur et espaces verts communs, compris dans les provisions sur charges mensuelles et donnant lieu à une régularisation annuelle. Les honoraires de location TTC (à la charge du locataire) incluent le montant de rédaction des états des lieux facturé pour 146 euros TTC, après réalisation lors de l'entrée dans les lieux. Disponible le 27/09/2025. Pour plus de détails sur ce logement, vous pouvez consulter la fiche descriptive de ce bien, sur votre site internet AFEDIM.
Les informations sur les risques auxquels ce bien est exposé sont disponibles sur le site Géorisques :       
Référence annonce : 1426918039      
