Accueil > Location T2 > Le Plessis Trévise (94420) > 822 €CC

Logement étudiant à Le Plessis Trévise

Calculer vos aides

Location T2 à Le Plessis Trévise - Vide

822€ /mois cc
Ajouter au coup de coeur

Type de location : Location classique - Meublé : NonCalculez votre aide

Disponibilités : 15/03/2026
Disponibilités : 15/03/2026
Visite virtuelle
Logement étudiant T2 à Le Plessis Trévise (94420) 1/2
Disponibilités : 15/03/2026
Afficher le numéro de téléphone
Demande d'informations

Demande d'informations

Délai de réponse moyen: 24-48h

Je n'ai pas de garant
Recevoir les annonces similaires par email

Informations et réservations

Délai de réponse moyen: 24-48h

Je n'ai pas de garant
Recevoir les annonces similaires par email

LE LOGEMENT

Type de réservation:Location classique
Type de bien:T2
Ameublement:Vide
Classe énergétique:NC
GES:NC
Colocation possible:Non

DESCRIPTION

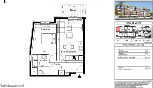
Au Plessis Trevise. RESIDENCE Caract Air. Nous vous proposons un appartement T2 d'une superficie de ² situé au 1er étage avec ascenseur, comprenant : un séjour de ² avec coin cuisine aménagé, un balcon de ², une chambre, une salle de bain avec WC. Au sous-sol, un parking n°43 complète ce bien. Eau chaude et chauffage collectifs au gaz. Eau froide, entretien parties communes, entretien ascenseur et espaces verts communs, compris dans les provisions sur charges mensuelles et donnant lieu à une régularisation annuelle. Les honoraires de location TTC (à la charge du locataire) incluent le montant de rédaction des états des lieux facturé pour euros TTC, après réalisation lors de l'entrée dans les lieux. Disponible le 01/11/2025. Pour plus de détails sur ce logement, vous pouvez consulter la fiche descriptive de ce bien, sur votre site internet AFEDIM.
Les informations sur les risques auxquels ce bien est exposé sont disponibles sur le site Géorisques :
Référence annonce : 1427216493

GARANTIES ACCEPTÉES
Visale
Garantie Studapart
Garant physique
ALERTE MAIL
Définissez la location que vous recherchez et nous vous enverrons par email toutes les annonces correspondantes
QUARTIER ET TRANSPORTS (Attention: l'adresse et le quartier de ce bien n'ont pas été communiqués par l'annonceur)
POUR VOUS AIDER
Trouvez la CAF à Le Plessis Trévise
Résidences étudiantes à Le Plessis Trévise
Trouvez un job à proximité
Financez votre logement
Liste des écoles à proximité
Découvrir Le Plessis Trévise
A quelles aides avez-vous droit ?
Simulation APL
Signaler un probleme
BIENS SIMILAIRES
Logement étudiant Location T3 Vide Le Plessis Trévise (94420) Location T3 Vide Le Plessis Trévise (94420) A partir de 1 223€
Logement étudiant Location Studio Vide Le Plessis Trévise (94420) Location Studio Vide Le Plessis Trévise (94420) A partir de 760€
Logement étudiant Location T3 Vide Le Plessis Trévise (94420) Location T3 Vide Le Plessis Trévise (94420) A partir de 1 150€
Besoin d'un logement à Le Plessis Trévise ?
Demande d'informations et réservations
Les aides au logement
Financement étudiant
822€ CC