Accueil > Location T2 > Laxou (54520) > 595 €CC

Logement étudiant à Laxou

Calculer vos aides

Location T2 à Laxou - Vide

595€ /mois cc
Ajouter au coup de coeur

Type de location : Location classique - Meublé : NonCalculez votre aide

Disponibilités : 18/01/2026
Disponibilités : 18/01/2026
Visite virtuelle
Logement étudiant T2 à Laxou (54520) 1/2
Disponibilités : 18/01/2026
Afficher le numéro de téléphone
Demande d'informations

Demande d'informations

Délai de réponse moyen: 24-48h

Je n'ai pas de garant
Recevoir les annonces similaires par email

Informations et réservations

Délai de réponse moyen: 24-48h

Je n'ai pas de garant
Recevoir les annonces similaires par email

LE LOGEMENT

Type de réservation:Location classique
Type de bien:T2
Ameublement:Vide
Classe énergétique:NC
GES:NC
Colocation possible:Non

DESCRIPTION

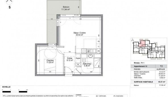
LAXOU, dans la résidence neuve LE COTEAU RE/LAX, nous vous proposons un appartement T2 N°13, d'une superficie de 42,73 m² situé au 1er étage avec ascenseur. Il se compose d'une entrée avec placard, d'une pièce de vie de m² avec cuisine ouverte et aménagée et donnant sur un balcon de m², d'une chambre de m², et d'une salle d'eau avec WC. Un parking n°53 à disposition. Chauffage et eau chaude individuels électrique. Eau froide, ascenseur, espaces verts communs et entretien parties communes, compris dans les provisions sur charges mensuelles et donnant lieu à une régularisation annuelle. Les honoraires de location TTC (à la charge du locataire) et le montant de rédaction des états des lieux facturé 129 ? TTC, après réalisation lors de l'entrée dans les lieux. Plus de détails sur ce logement sur notre site internet AFEDIM.
Les informations sur les risques auxquels ce bien est exposé sont disponibles sur le site Géorisques :
Référence annonce : 1427087800

GARANTIES ACCEPTÉES
Visale
Garantie Studapart
Garant physique
ALERTE MAIL
Définissez la location que vous recherchez et nous vous enverrons par email toutes les annonces correspondantes
QUARTIER ET TRANSPORTS (Attention: l'adresse et le quartier de ce bien n'ont pas été communiqués par l'annonceur)
POUR VOUS AIDER
Trouvez la CAF à Laxou
Résidences étudiantes à Laxou
Trouvez un job à proximité
Financez votre logement
Liste des écoles à proximité
Découvrir Laxou
A quelles aides avez-vous droit ?
Simulation APL
Signaler un probleme
BIENS SIMILAIRES
Logement étudiant Location T2 Vide Laxou (54520) Location T2 Vide Laxou (54520) A partir de 571€
Logement étudiant Location T2 Vide Laxou (54520) Location T2 Vide Laxou (54520) A partir de 605€
Logement étudiant Location T2 Vide Laxou (54520) Location T2 Vide Laxou (54520) A partir de 550€
Besoin d'un logement à Laxou ?
Demande d'informations et réservations
Les aides au logement
Financement étudiant
595€ CC