Accueil > Location T2 > Illkirch Graffenstaden (67400) > 473 €CC

Logement étudiant à Illkirch Graffenstaden

Calculer vos aides

Location T2 à Illkirch Graffenstaden - Vide

473€ /mois cc
Ajouter au coup de coeur

Type de location : Location classique - Meublé : NonCalculez votre aide

Disponibilités : 08/12/2025
Disponibilités : 08/12/2025
Visite virtuelle
Logement étudiant T2 à Illkirch Graffenstaden (67400) 1/2
Disponibilités : 08/12/2025
Afficher le numéro de téléphone
Demande d'informations

Demande d'informations

Délai de réponse moyen: 24-48h

Je n'ai pas de garant
Recevoir les annonces similaires par email

Informations et réservations

Délai de réponse moyen: 24-48h

Je n'ai pas de garant
Recevoir les annonces similaires par email

LE LOGEMENT

Type de réservation:Location classique
Type de bien:T2
Ameublement:Vide
Classe énergétique:NC
GES:NC
Colocation possible:Non

DESCRIPTION

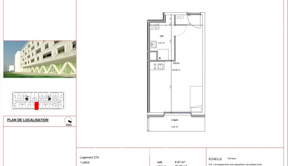
A ILLKIRCH GRAFFENSTADEN, dans la résidence UNITHA, nous vous proposons un T1 neuf (N°319) comprenant une pièce de vie avec kitchenette donnant sur une loggia et une salle d'eau avec WC. Production d'eau chaude et chauffage collectif urbain. Stationnement n°1067. Chauffage collectif. Entretien parties communes, entretien ascenseur et espaces verts communs, compris dans les provisions sur charges mensuelles et donnant lieu à une régularisation annuelle. Les honoraires de location TTC (à la charge du locataire) incluent le montant de rédaction des états des lieux facturé pour 77 euros TTC, après réalisation lors de l'entrée dans les lieux. Disponible le 03/01/2025. Pour plus de détails sur ce logement, vous pouvez consulter la fiche descriptive de ce bien, sur votre site internet AFEDIM
Les informations sur les risques auxquels ce bien est exposé sont disponibles sur le site Géorisques :
Référence annonce : 1427002790

GARANTIES ACCEPTÉES
Visale
Garantie Studapart
Garant physique
ALERTE MAIL
Définissez la location que vous recherchez et nous vous enverrons par email toutes les annonces correspondantes
QUARTIER ET TRANSPORTS (Attention: l'adresse et le quartier de ce bien n'ont pas été communiqués par l'annonceur)
POUR VOUS AIDER
Trouvez la CAF à Illkirch Graffenstaden
Résidences étudiantes à Illkirch Graffenstaden
Trouvez un job à proximité
Financez votre logement
Liste des écoles à proximité
Découvrir Illkirch Graffenstaden
A quelles aides avez-vous droit ?
Simulation APL
Signaler un probleme
BIENS SIMILAIRES
Logement étudiant Location T2 Vide Geispolsheim (67400) Location T2 Vide Geispolsheim (67400) A partir de 712€
Logement étudiant Location T2 Vide Illkirch Graffenstaden (67400) Location T2 Vide Illkirch Graffenstaden (67400) A partir de 648€
Logement étudiant Location T2 Meublé Illkirch Graffenstaden (67400) Location T2 Meublé Illkirch Graffenstaden (67400) A partir de 514€
Besoin d'un logement à Illkirch Graffenstaden ?
Demande d'informations et réservations
Les aides au logement
Financement étudiant
473€ CC