Accueil > Location T2 > Hennebont (56700) > 444 €CC

Logement étudiant à Hennebont

Calculer vos aides

Location T2 à Hennebont - Vide

444€ /mois cc
Ajouter au coup de coeur

Type de location : Location classique - Meublé : NonCalculez votre aide

Disponibilités : 26/04/2026
Disponibilités : 26/04/2026
Visite virtuelle
Logement étudiant T2 à Hennebont (56700) 1/2
Disponibilités : 26/04/2026
Afficher le numéro de téléphone
Demande d'informations

Demande d'informations

Délai de réponse moyen: 24-48h

Je n'ai pas de garant
Recevoir les annonces similaires par email

Informations et réservations

Délai de réponse moyen: 24-48h

Je n'ai pas de garant
Recevoir les annonces similaires par email

LE LOGEMENT

Type de réservation:Location classique
Type de bien:T2
Ameublement:Vide
Classe énergétique:NC
GES:NC
Colocation possible:Non

DESCRIPTION

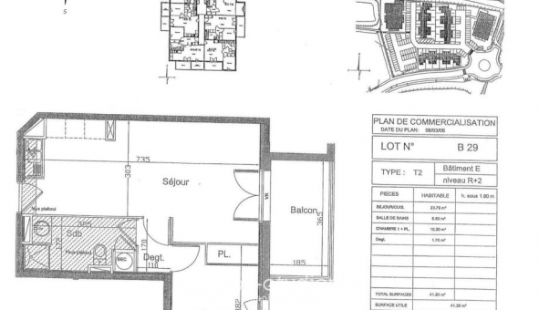
A Hennebont, dans la Résidence Gardeloupe, un appartement T2 n° B29 (lot 124), situé au 2ème étage avec ascenseur, bâtiment B, d'une surface habitable de 41 m² environ, comprenant : séjour coin cuisine ouvrant sur balcon de 6 m² environ, dégagement, une chambre avec placard, salle d'eau avec ballon d'eau chaude, wc, douche et lavabo. Chauffage individuel électrique. Une cave n° 24 (lot 149) au RDC et un parking extérieur non couvert n° 62 (lot 562). Le montant des honoraires mentionné inclut le montant des honoraires de location (visite, constitution dossier, bail) facturé directement au locataire par le partenaire pour 332 euros TTC et le montant des honoraires de rédaction des états des lieux facturés par AFEDIM Gestion Immobilière pour 124 euros TTC, après réalisation, lors de l'entrée dans les lieux. Le règlement des honoraires état des lieux est à adresser avec le bail signé à AFEDIM Gestion.
Les informations sur les risques auxquels ce bien est exposé sont disponibles sur le site Géorisques :
Référence annonce : 1427311998

GARANTIES ACCEPTÉES
Visale
Garantie Studapart
Garant physique
ALERTE MAIL
Définissez la location que vous recherchez et nous vous enverrons par email toutes les annonces correspondantes
QUARTIER ET TRANSPORTS (Attention: l'adresse et le quartier de ce bien n'ont pas été communiqués par l'annonceur)
POUR VOUS AIDER
Trouvez la CAF à Hennebont
Résidences étudiantes à Hennebont
Trouvez un job à proximité
Financez votre logement
Liste des écoles à proximité
Découvrir Hennebont
A quelles aides avez-vous droit ?
Simulation APL
Signaler un probleme
BIENS SIMILAIRES
Logement étudiant Location T3 Vide Brandérion (56700) Location T3 Vide Brandérion (56700) A partir de 690€
Logement étudiant Location T4 Vide Brandérion (56700) Location T4 Vide Brandérion (56700) A partir de 715€
Logement étudiant Location T3 Vide Brandérion (56700) Location T3 Vide Brandérion (56700) A partir de 850€
Besoin d'un logement à Hennebont ?
Demande d'informations et réservations
Les aides au logement
Financement étudiant
444€ CC