Accueil > Location T2 > Hallennes lez Haubourdin (59320) > 671 €CC

Logement étudiant à Hallennes lez Haubourdin

Calculer vos aides

Location T2 à Hallennes lez Haubourdin - Vide

671€ /mois cc
Ajouter au coup de coeur

Type de location : Location classique - Meublé : NonCalculez votre aide

Disponibilités : 13/10/2025
Disponibilités : 13/10/2025
Visite virtuelle
Logement étudiant T2 à Hallennes lez Haubourdin (59320) 1/2
Disponibilités : 13/10/2025
Afficher le numéro de téléphone
Demande d'informations

Demande d'informations

Délai de réponse moyen: 24-48h

Je n'ai pas de garant
Recevoir les annonces similaires par email

Informations et réservations

Délai de réponse moyen: 24-48h

Je n'ai pas de garant
Recevoir les annonces similaires par email

LE LOGEMENT

Type de réservation:Location classique
Type de bien:T2
Ameublement:Vide
Classe énergétique:NC
GES:NC
Colocation possible:Non

DESCRIPTION

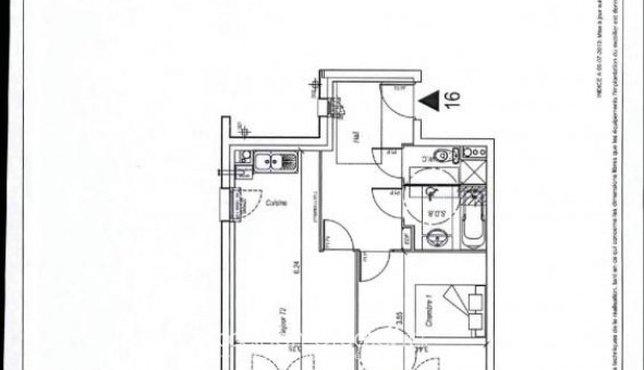
HAUBOURDIN, dans la résidence ESPRIT NATURE, appartement T2 n°16 de ² avec balcon de ² situé au 1er étage. Il comprend un séjour avec coin cuisine de ², un dégagement de ², une chambre de ², une salle de bains de ² avec WC séparé. Une place de parking extérieur (lot 116) Chauffage individuel gaz. L'entretien des parties communes et espaces verts sont compris dans les provisions sur charges mensuelles et donnent lieu à une régularisation annuelle. Les honoraires de location sont facturés directement au locataire par le partenaire pour 444? TTC. Quant aux honoraires de rédaction des états des lieux, ils sont facturés par AFEDIM Gestion pour 133? TTC, après réalisation, lors de l'entrée dans les lieux. Plus de détails sur notre site internet AFEDIM.
Les informations sur les risques auxquels ce bien est exposé sont disponibles sur le site Géorisques :
Référence annonce : 1426873639

GARANTIES ACCEPTÉES
Visale
Garantie Studapart
Garant physique
ALERTE MAIL
Définissez la location que vous recherchez et nous vous enverrons par email toutes les annonces correspondantes
QUARTIER ET TRANSPORTS (Attention: l'adresse et le quartier de ce bien n'ont pas été communiqués par l'annonceur)
POUR VOUS AIDER
Trouvez la CAF à Hallennes lez Haubourdin
Résidences étudiantes à Hallennes lez Haubourdin
Trouvez un job à proximité
Financez votre logement
Découvrir Hallennes lez Haubourdin
A quelles aides avez-vous droit ?
Simulation APL
Signaler un probleme
BIENS SIMILAIRES
Logement étudiant Location T3 Vide Emmerin (59320) Location T3 Vide Emmerin (59320) A partir de 940€
Logement étudiant Location T3 Vide Emmerin (59320) Location T3 Vide Emmerin (59320) A partir de 970€
Logement étudiant Location T3 Vide Sequedin (59320) Location T3 Vide Sequedin (59320) A partir de 763€
Besoin d'un logement à Hallennes lez Haubourdin ?
Demande d'informations et réservations
Les aides au logement
Financement étudiant
671€ CC