Accueil > Location T2 > Faches Thumesnil (59155) > 728 €CC

Logement étudiant à Faches Thumesnil

Calculer vos aides

Location T2 à Faches Thumesnil - Vide

728€ /mois cc
Ajouter au coup de coeur

Type de location : Location classique - Meublé : NonCalculez votre aide

Disponibilités : 04/02/2026
Disponibilités : 04/02/2026
Visite virtuelle
Logement étudiant T2 à Faches Thumesnil (59155) 1/2
Disponibilités : 04/02/2026
Afficher le numéro de téléphone
Demande d'informations

Demande d'informations

Délai de réponse moyen: 24-48h

Je n'ai pas de garant
Recevoir les annonces similaires par email

Informations et réservations

Délai de réponse moyen: 24-48h

Je n'ai pas de garant
Recevoir les annonces similaires par email

LE LOGEMENT

Type de réservation:Location classique
Type de bien:T2
Ameublement:Vide
Classe énergétique:NC
GES:NC
Colocation possible:Non

DESCRIPTION

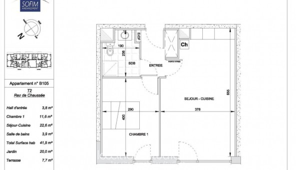
A Faches Thumesnil, au coeur d'un espace paysagé, dans la résidence LES HAUTS DE PERISEAUX, appartement T2 n°B105 (lot 5) de ² au rez-de-chaussée du Bâtiment B. Il est composé d'une entrée avec placard, un séjour, une cuisine aménagée et équipée (meubles haut et bas, four, plaque de cuisson et hotte), une chambre, une salle d'eau et WC. A l'extérieur un parking n°1 (lot 76). Chauffage et eau chaude individuels. Entretien parties communes, entretien ascenseur et espaces verts communs, compris dans les provisions sur charges mensuelles et donnant lieu à une régularisation annuelle. Les honoraires de location TTC (à la charge du locataire) incluent le montant de rédaction des états des lieux facturé pour 126 euros TTC, après réalisation lors de l'entrée dans les lieux. Pour plus de détails sur ce logement, vous pouvez consulter la fiche descriptive de ce bien, sur votre site internet AFEDIM
Les informations sur les risques auxquels ce bien est exposé sont disponibles sur le site Géorisques :
Référence annonce : 1427121974

GARANTIES ACCEPTÉES
Visale
Garantie Studapart
Garant physique
ALERTE MAIL
Définissez la location que vous recherchez et nous vous enverrons par email toutes les annonces correspondantes
QUARTIER ET TRANSPORTS (Attention: l'adresse et le quartier de ce bien n'ont pas été communiqués par l'annonceur)
POUR VOUS AIDER
Trouvez la CAF à Faches Thumesnil
Résidences étudiantes à Faches Thumesnil
Trouvez un job à proximité
Financez votre logement
Liste des écoles à proximité
Découvrir Faches Thumesnil
A quelles aides avez-vous droit ?
Simulation APL
Signaler un probleme
BIENS SIMILAIRES
Logement étudiant Location T2 Vide Faches Thumesnil (59155) Location T2 Vide Faches Thumesnil (59155) A partir de 542€
Logement étudiant Location T3 Vide Faches Thumesnil (59155) Location T3 Vide Faches Thumesnil (59155) A partir de 915€
Logement étudiant Location T2 Vide Faches Thumesnil (59155) Location T2 Vide Faches Thumesnil (59155) A partir de 630€
Besoin d'un logement à Faches Thumesnil ?
Demande d'informations et réservations
Les aides au logement
Financement étudiant
728€ CC