Accueil > Location T2 > Dijon (21000) > 489 €CC

Logement étudiant à Dijon

Calculer vos aides

Location T2 à Dijon - Vide

489€ /mois cc
Ajouter au coup de coeur

Type de location : Location classique - Meublé : NonCalculez votre aide

Disponibilités : 26/04/2026
Disponibilités : 26/04/2026
Visite virtuelle
Logement étudiant T2 à Dijon (21000) 1/2
Disponibilités : 26/04/2026
Afficher le numéro de téléphone
Demande d'informations

Demande d'informations

Délai de réponse moyen: 24-48h

Je n'ai pas de garant
Recevoir les annonces similaires par email

Informations et réservations

Délai de réponse moyen: 24-48h

Je n'ai pas de garant
Recevoir les annonces similaires par email

LE LOGEMENT

Type de réservation:Location classique
Type de bien:T2
Ameublement:Vide
Classe énergétique:NC
GES:NC
Colocation possible:Non

DESCRIPTION

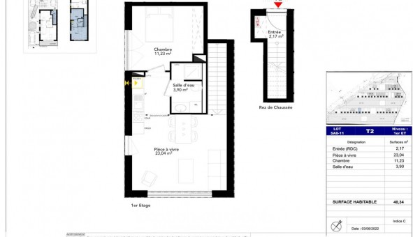
A DIJON, dans la résidence neuve "BELLES HOUSES", nous vous proposons ce T2 de ². Il se compose au rez-de-chaussée d'une entrée et à l'étage d'un séjour/cuisine de ², d'une salle de bain avec WC ainsi que d'une chambre de ². Une place de parking accompagne le logement. Chauffage et eau chaude individuel gaz. Entretien parties communes, compris dans les provisions sur charges mensuelles et donnant lieu à une régularisation annuelle. Les honoraires de location TTC (à la charge du locataire) incluent le montant de rédaction des états des lieux facturé pour 121 euros TTC, après réalisation lors de l'entrée dans les lieux. Disponibilité prévisionnelle Décembre 2024. Plus de détails sur notre site AFEDIM. Logement neuf en cours de construction - DPE à venir
Les informations sur les risques auxquels ce bien est exposé sont disponibles sur le site Géorisques :
Référence annonce : 1427311926

BIENS SIMILAIRES
Logement étudiant Location Studio Meublé Dijon (21000) Location Studio Meublé Dijon (21000) A partir de 575€
Logement étudiant Location T2 Meublé Dijon (21000) Location T2 Meublé Dijon (21000) A partir de 798€
Logement étudiant Location Studio Meublé Dijon (21000) Location Studio Meublé Dijon (21000) A partir de 420€
GARANTIES ACCEPTÉES
Visale
Garantie Studapart
Garant physique
ALERTE MAIL
Définissez la location que vous recherchez et nous vous enverrons par email toutes les annonces correspondantes
QUARTIER ET TRANSPORTS (Attention: l'adresse et le quartier de ce bien n'ont pas été communiqués par l'annonceur)
POUR VOUS AIDER
Trouvez la CAF à Dijon
Résidences étudiantes à Dijon
Trouvez un job à proximité
Financez votre logement
Liste des écoles à proximité
Découvrir Dijon
A quelles aides avez-vous droit ?
Simulation APL
Signaler un probleme
BIENS SIMILAIRES
Logement étudiant Location Studio Vide Dijon (21000) Location Studio Vide Dijon (21000) A partir de 490€
Logement étudiant Location T2 Meublé Dijon (21000) Location T2 Meublé Dijon (21000) A partir de 750€
Logement étudiant Location T2 Vide Dijon (21000) Location T2 Vide Dijon (21000) A partir de 710€
Besoin d'un logement à Dijon ?
Demande d'informations et réservations
Les aides au logement
Financement étudiant
489€ CC