Accueil > Location T2 > Cucq (62780) > 567 €CC

Logement étudiant à Cucq

Calculer vos aides

Location T2 à Cucq - Vide

567€ /mois cc
Ajouter au coup de coeur

Type de location : Location classique - Meublé : NonCalculez votre aide

Disponibilités : 18/02/2026
Disponibilités : 18/02/2026
Visite virtuelle
Logement étudiant T2 à Cucq (62780) 1/2
Disponibilités : 18/02/2026
Afficher le numéro de téléphone
Demande d'informations

Demande d'informations

Délai de réponse moyen: 24-48h

Je n'ai pas de garant
Recevoir les annonces similaires par email

Informations et réservations

Délai de réponse moyen: 24-48h

Je n'ai pas de garant
Recevoir les annonces similaires par email

LE LOGEMENT

Type de réservation:Location classique
Type de bien:T2
Ameublement:Vide
Classe énergétique:NC
GES:NC
Colocation possible:Non

DESCRIPTION

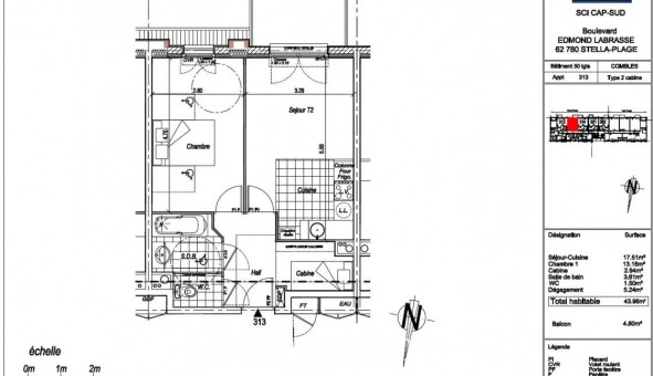
A Stella Plage, dans le prolongement du Touquet Paris Plage à Cucq, dans la résidence CAP AU SUD, un appartement T2 n°313 de ² avec balcon ², au 3ème étage avec ascenseur. Il se compose d'une entrée, d'une pièce à vivre avec cuisine ouverte aménagée équipée (plaque, four, hotte, réfrigérateur, lave vaisselle), d'une chambre et d'une salle de bain avec WC. Au sous sol, un parking couvert. Eau chaude et chauffage individuel. Entretien parties communes, entretien ascenseur et espaces verts communs, compris dans les provisions sur charges mensuelles et donnant lieu à une régularisation annuelle. Les honoraires de location TTC (à la charge du locataire) incluent le montant de rédaction des états des lieux facturé pour 131 euros TTC, après réalisation lors de l'entrée dans les lieux. Disponible le 23/01/2025. Pour plus de détails sur ce logement, vous pouvez consulter la fiche descriptive de ce bien, sur votre site internet AFEDIM
Les informations sur les risques auxquels ce bien est exposé sont disponibles sur le site Géorisques :
Référence annonce : 1427158796

GARANTIES ACCEPTÉES
Visale
Garantie Studapart
Garant physique
ALERTE MAIL
Définissez la location que vous recherchez et nous vous enverrons par email toutes les annonces correspondantes
QUARTIER ET TRANSPORTS (Attention: l'adresse et le quartier de ce bien n'ont pas été communiqués par l'annonceur)
POUR VOUS AIDER
Trouvez la CAF à Cucq
Résidences étudiantes à Cucq
Trouvez un job à proximité
Financez votre logement
Découvrir Cucq
A quelles aides avez-vous droit ?
Simulation APL
Signaler un probleme
BIENS SIMILAIRES
Logement étudiant Location T2 Vide Cucq (62780) Location T2 Vide Cucq (62780) A partir de 660€
Logement étudiant Location T2 Vide Cucq (62780) Location T2 Vide Cucq (62780) A partir de 656€
Logement étudiant Location T2 Vide Cucq (62780) Location T2 Vide Cucq (62780) A partir de 590€
Besoin d'un logement à Cucq ?
Demande d'informations et réservations
Les aides au logement
Financement étudiant
567€ CC