Accueil > Location T2 > Compiègne (60200) > 668 €CC

Logement étudiant à Compiègne

Calculer vos aides

Location T2 à Compiègne - Vide

668€ /mois cc
Ajouter au coup de coeur

Type de location : Location classique - Meublé : NonCalculez votre aide

Disponibilités : 20/03/2026
Disponibilités : 20/03/2026
Visite virtuelle
Logement étudiant T2 à Compiègne (60200) 1/2
Disponibilités : 20/03/2026
Afficher le numéro de téléphone
Demande d'informations

Demande d'informations

Délai de réponse moyen: 24-48h

Je n'ai pas de garant
Recevoir les annonces similaires par email

Informations et réservations

Délai de réponse moyen: 24-48h

Je n'ai pas de garant
Recevoir les annonces similaires par email

LE LOGEMENT

Type de réservation:Location classique
Type de bien:T2
Ameublement:Vide
Classe énergétique:NC
GES:NC
Colocation possible:Non

DESCRIPTION

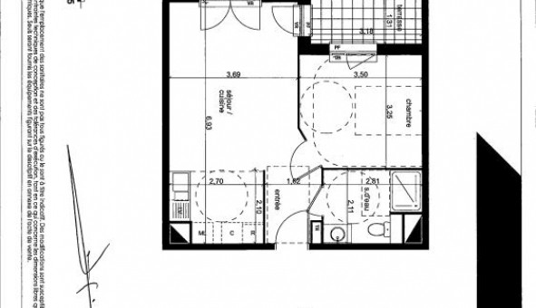
COMPIEGNE, dans la résidence LA CANOPEE que nous vous proposons un appartement T2 (C114), d'une superficie de 43,04 m² situé au 1er étage avec ascenseur. Il se compose d'une entrée, d'un séjour-cuisine de 23,47 m² donnant sur une terrasse de 4,10 m², d'une salle d'eau, de WC, d'un cellier et d'une chambre de 10,97 m². Un emplacement de parking intérieur n°9 et extérieur n°11 est également à votre disposition. Eau froide indiv. Chauffage, eau chaude, espaces verts communs et entretien parties communes, compris dans les provisions sur charges mensuelles et donnant lieu à une régularisation annuelle. Les honoraires de location de 477 ? TTC (à la charge du locataire) incluent le montant de rédaction des états des lieux facturé 130 ? TTC, après réalisation lors de l'entrée dans les lieux. Pour plus de détails sur ce logement, vous pouvez consulter la fiche descriptive de ce bien, sur notre site internet AFEDIM.
Les informations sur les risques auxquels ce bien est exposé sont disponibles sur le site Géorisques :
Référence annonce : 1427228649

GARANTIES ACCEPTÉES
Visale
Garantie Studapart
Garant physique
ALERTE MAIL
Définissez la location que vous recherchez et nous vous enverrons par email toutes les annonces correspondantes
QUARTIER ET TRANSPORTS (Attention: l'adresse et le quartier de ce bien n'ont pas été communiqués par l'annonceur)
POUR VOUS AIDER
Trouvez la CAF à Compiègne
Résidences étudiantes à Compiègne
Trouvez un job à proximité
Financez votre logement
Liste des écoles à proximité
Découvrir Compiègne
A quelles aides avez-vous droit ?
Simulation APL
Signaler un probleme
BIENS SIMILAIRES
Logement étudiant Location T3 Vide Bienville (60200) Location T3 Vide Bienville (60200) A partir de 820€
Logement étudiant Location Studio Vide Bienville (60200) Location Studio Vide Bienville (60200) A partir de 670€
Logement étudiant Location T2 Vide Bienville (60200) Location T2 Vide Bienville (60200) A partir de 765€
Besoin d'un logement à Compiègne ?
Demande d'informations et réservations
Les aides au logement
Financement étudiant
668€ CC