Accueil > Location T2 > Colmar (68000) > 566 €CC

Logement étudiant à Colmar

Calculer vos aides

Location T2 à Colmar - Vide

566€ /mois cc
Ajouter au coup de coeur

Type de location : Location classique - Meublé : NonCalculez votre aide

Disponibilités : 15/04/2026
Disponibilités : 15/04/2026
Visite virtuelle
Logement étudiant T2 à Colmar (68000) 1/2
Disponibilités : 15/04/2026
Afficher le numéro de téléphone
Demande d'informations

Demande d'informations

Délai de réponse moyen: 24-48h

Je n'ai pas de garant
Recevoir les annonces similaires par email

Informations et réservations

Délai de réponse moyen: 24-48h

Je n'ai pas de garant
Recevoir les annonces similaires par email

LE LOGEMENT

Type de réservation:Location classique
Type de bien:T2
Ameublement:Vide
Classe énergétique:NC
GES:NC
Colocation possible:Non

DESCRIPTION

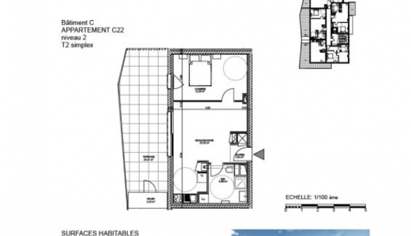
COLMAR, nous vous proposons un appartement T2 (n°C22 ) d'une superficie de 40,80m² au 2ème étage du bâtiment C de la résidence neuve EMERGENCE DES MARAICHERS. Il se compose d'un séjour-cuisine de 20,26m² donnant sur une terrasse de 25,41m², d'un cellier de 2,42m², d'une salle de bain avec WC et d'une chambre de 13,26m². Au sous-sol un emplacement de parking privé n°3 (lot 546). Eau chaude et chauffage individuel au gaz. Entretien parties communes, entretien ascenseur et espaces verts communs, compris dans les provisions sur charges mensuelles et donnant lieu à une régularisation annuelle. Les honoraires de location TTC (à la charge du locataire) incluent le montant de rédaction des états des lieux facturé pour 122 euros TTC, après réalisation lors de l'entrée dans les lieux. Disponible le 10/03/2026. Pour plus de détails sur ce logement, vous pouvez consulter la fiche descriptive de ce bien, sur votre site internet AFEDIM
Les informations sur les risques auxquels ce bien est exposé sont disponibles sur le site Géorisques :
Référence annonce : 1427284661

GARANTIES ACCEPTÉES
Visale
Garantie Studapart
Garant physique
ALERTE MAIL
Définissez la location que vous recherchez et nous vous enverrons par email toutes les annonces correspondantes
QUARTIER ET TRANSPORTS (Attention: l'adresse et le quartier de ce bien n'ont pas été communiqués par l'annonceur)
POUR VOUS AIDER
Trouvez la CAF à Colmar
Résidences étudiantes à Colmar
Trouvez un job à proximité
Financez votre logement
Liste des écoles à proximité
Découvrir Colmar
A quelles aides avez-vous droit ?
Simulation APL
Signaler un probleme
BIENS SIMILAIRES
Logement étudiant Location T3 Vide Colmar (68000) Location T3 Vide Colmar (68000) A partir de 720€
Logement étudiant Location T2 Meublé Colmar (68000) Location T2 Meublé Colmar (68000) A partir de 650€
Logement étudiant Location T3 Vide Colmar (68000) Location T3 Vide Colmar (68000) A partir de 895€
Besoin d'un logement à Colmar ?
Demande d'informations et réservations
Les aides au logement
Financement étudiant
566€ CC