 Calculer vos aides
Calculer vos aides
			 
				Type de location : Location classique - Meublé : Non Calculez votre aide
Calculez votre aide
 Afficher le numéro de téléphone
Afficher le numéro de téléphone
				 Demande d'informations
Demande d'informations
				Demande d'informations
Délai de réponse moyen: 24-48h
Informations et réservations
Délai de réponse moyen: 24-48h
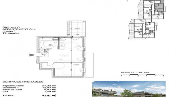
            COLMAR, nous vous proposons un appartement T2 (n°C14) d'une superficie de 41,57m² au 1er  étage du bâtiment C de la résidence EMERGENCE DES MARAICHERS. Il se compose d'un séjour-cuisine de 21,32m² donnant sur une terrasse de 6,68m², d'une salle de bain avec WC et d'une chambre de 12,83m². A l'extérieur un emplacement de parking privé n°6. Eau chaude et chauffage individuel au gaz. Eau froide, ascenseur, entretien parties communes et espaces verts communs, compris dans les provisions sur charges mensuelles et donnant lieu à une régularisation annuelle. Les honoraires de location TTC (à la charge du locataire) incluent le montant de rédaction des états des lieux facturé pour 124,00 euros TTC, après réalisation lors de l'entrée dans les lieux. . Pour plus de détails sur ce logement, vous pouvez consulter la fiche descriptive de ce bien, sur notre site internet AFEDIM.
Les informations sur les risques auxquels ce bien est exposé sont disponibles sur le site Géorisques :       
Référence annonce : 1426918056      
