Accueil > Location T2 > Chenôve (21300) > 540 €CC

Logement étudiant à Chenôve

Calculer vos aides

Location T2 à Chenôve - Vide

540€ /mois cc
Ajouter au coup de coeur

Type de location : Location classique - Meublé : NonCalculez votre aide

Disponibilités : 16/10/2025
Disponibilités : 16/10/2025
Visite virtuelle
Logement étudiant T2 à Chenôve (21300) 1/2
Disponibilités : 16/10/2025
Afficher le numéro de téléphone
Demande d'informations

Demande d'informations

Délai de réponse moyen: 24-48h

Je n'ai pas de garant
Recevoir les annonces similaires par email

Informations et réservations

Délai de réponse moyen: 24-48h

Je n'ai pas de garant
Recevoir les annonces similaires par email

LE LOGEMENT

Type de réservation:Location classique
Type de bien:T2
Ameublement:Vide
Classe énergétique:NC
GES:NC
Colocation possible:Non

DESCRIPTION

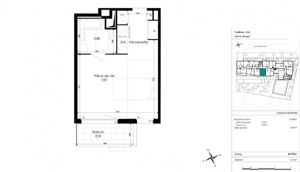
A CHENOVE - Dans la résidence neuve CAP'CANAL, nous vous proposons un appartement T1 de ² situé au 5ème étage. Il se compose d'une entrée avec placard et kitchenette (plaques de cuisson, hotte, frigo), d'une grande pièce de vie de ² donnant sur un balcon de ² et d'une salle de bain avec WC. Cet appartement dispose également d'une place de stationnement N°51 en sous-sol. Chauffage et eau chaude individuel au gaz. Entretien parties communes, ascenseur et espaces verts communs, compris dans les provisions sur charges mensuelles et donnant lieu à une régularisation annuelle. Les honoraires de location TTC (à la charge du locataire) incluent le montant de rédaction des états des lieux facturé pour 98 euros TTC, après réalisation lors de l'entrée dans les lieux. Disponibilité prévue courant octobre 2025. Plus de détails sur notre site internet AFEDIM. Logement neuf en cours de construction - DPE à venir
Les informations sur les risques auxquels ce bien est exposé sont disponibles sur le site Géorisques :
Référence annonce : 1426856062

GARANTIES ACCEPTÉES
Visale
Garantie Studapart
Garant physique
ALERTE MAIL
Définissez la location que vous recherchez et nous vous enverrons par email toutes les annonces correspondantes
QUARTIER ET TRANSPORTS (Attention: l'adresse et le quartier de ce bien n'ont pas été communiqués par l'annonceur)
POUR VOUS AIDER
Trouvez la CAF à Chenôve
Résidences étudiantes à Chenôve
Trouvez un job à proximité
Financez votre logement
Liste des écoles à proximité
Découvrir Chenôve
A quelles aides avez-vous droit ?
Simulation APL
Signaler un probleme
BIENS SIMILAIRES
Logement étudiant Location T2 Vide Chenôve (21300) Location T2 Vide Chenôve (21300) A partir de 615€
Logement étudiant Location T3 Vide Chenôve (21300) Location T3 Vide Chenôve (21300) A partir de 810€
Logement étudiant Location T2 Vide Chenôve (21300) Location T2 Vide Chenôve (21300) A partir de 615€
Besoin d'un logement à Chenôve ?
Demande d'informations et réservations
Les aides au logement
Financement étudiant
540€ CC