Accueil > Location T2 > Chenôve (21300) > 600 €CC

Logement étudiant à Chenôve

Calculer vos aides

Location T2 à Chenôve - Vide

600€ /mois cc
Ajouter au coup de coeur

Type de location : Location classique - Meublé : NonCalculez votre aide

Disponibilités : 02/10/2025
Disponibilités : 02/10/2025
Visite virtuelle
Logement étudiant T2 à Chenôve (21300) 1/2
Disponibilités : 02/10/2025
Afficher le numéro de téléphone
Demande d'informations

Demande d'informations

Délai de réponse moyen: 24-48h

Je n'ai pas de garant
Recevoir les annonces similaires par email

Informations et réservations

Délai de réponse moyen: 24-48h

Je n'ai pas de garant
Recevoir les annonces similaires par email

LE LOGEMENT

Type de réservation:Location classique
Type de bien:T2
Ameublement:Vide
Classe énergétique:NC
GES:NC
Colocation possible:Non

DESCRIPTION

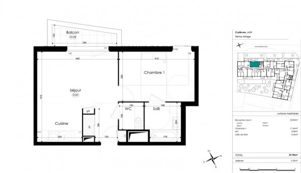
A CHENOVE, dans la résidence neuve CAP' CANAL, nous vous proposons cet appartement T2 de ² situé au 5ème étage avec ascenseur. Il se compose d'une entrée avec placard, d'une pièce de vie de 22m² avec coin cuisine aménagé et équipée (plaque de cuisson, four, hotte, réfrigérateur) et donnant sur un balcon de ², d'un WC indépendant, d'une chambre avec salle de bain privative. Une place de parking complète le lot. Chauffage et eau chaude électrique. Entretien parties communes, entretien ascenseur, compris dans les provisions sur charges mensuelles et donnant lieu à une régularisation annuelle. Les honoraires de location TTC (à la charge du locataire) incluent le montant de rédaction des états des lieux facturé pour 119 euros TTC, après réalisation lors de l'entrée dans les lieux. Disponibilité prévisionnelle octobre 2025. Plus de détails sur notre site AFEDIM. Logement neuf en cours de construction - DPE à venir.
Les informations sur les risques auxquels ce bien est exposé sont disponibles sur le site Géorisques :
Référence annonce : 1426827967

GARANTIES ACCEPTÉES
Visale
Garantie Studapart
Garant physique
ALERTE MAIL
Définissez la location que vous recherchez et nous vous enverrons par email toutes les annonces correspondantes
QUARTIER ET TRANSPORTS (Attention: l'adresse et le quartier de ce bien n'ont pas été communiqués par l'annonceur)
POUR VOUS AIDER
Trouvez la CAF à Chenôve
Résidences étudiantes à Chenôve
Trouvez un job à proximité
Financez votre logement
Liste des écoles à proximité
Découvrir Chenôve
A quelles aides avez-vous droit ?
Simulation APL
Signaler un probleme
BIENS SIMILAIRES
Logement étudiant Location T3 Vide Chenôve (21300) Location T3 Vide Chenôve (21300) A partir de 857€
Logement étudiant Location T2 Vide Chenôve (21300) Location T2 Vide Chenôve (21300) A partir de 625€
Logement étudiant Location T3 Vide Chenôve (21300) Location T3 Vide Chenôve (21300) A partir de 830€
Besoin d'un logement à Chenôve ?
Demande d'informations et réservations
Les aides au logement
Financement étudiant
600€ CC