Accueil > Location T2 > Châtillon sur Cluses (74300) > 595 €CC

Logement étudiant à Châtillon sur Cluses

Calculer vos aides

Location T2 à Châtillon sur Cluses - Vide

595€ /mois cc
Ajouter au coup de coeur

Type de location : Location classique - Meublé : NonCalculez votre aide

Disponibilités : 18/12/2025
Disponibilités : 18/12/2025
Visite virtuelle
Logement étudiant T2 à Châtillon sur Cluses (74300) 1/2
Disponibilités : 18/12/2025
Afficher le numéro de téléphone
Demande d'informations

Demande d'informations

Délai de réponse moyen: 24-48h

Je n'ai pas de garant
Recevoir les annonces similaires par email

Informations et réservations

Délai de réponse moyen: 24-48h

Je n'ai pas de garant
Recevoir les annonces similaires par email

LE LOGEMENT

Type de réservation:Location classique
Type de bien:T2
Ameublement:Vide
Classe énergétique:NC
GES:NC
Colocation possible:Non

DESCRIPTION

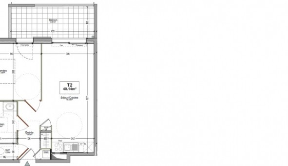
B203 LA GENESE : AGREABLE T2 CLAIR DE 40 M²AVEC BALCON DE ² AU CALME SITUE AU COEUR D'UNE JOLIE COPROPRIETE RECENTE DE STANDING A FAIBLE CONSOMMATION ENERGETIQUE ET SECURISE PAR VIDEOPHONE L'appartement se compose d'une entrée avec rangement, d'un séjour avec cuisine US équipée et meublée (hotte, plaques vitro, four, meubles haut et bas) , une belle chambre de 11m² en sol parquet avec accès au balcon, une salle d'eau avec meuble sous vasque et sèche serviettes. WC séparés. Garage fermé en sous-sol sécurisé. Chauffage au gaz ind. A PROXIMITE DE TOUS COMMERCES.
Consommation d'énergie totale entre 420-600EUR par an (prix moyens des énergies indexés au ).

Les informations sur les risques auxquels ce bien est exposé sont disponibles sur le site Géorisques : www. georisques. gouv. fr
Référence annonce : 1427026856

GARANTIES ACCEPTÉES
Visale
Garantie Studapart
Garant physique
ALERTE MAIL
Définissez la location que vous recherchez et nous vous enverrons par email toutes les annonces correspondantes
QUARTIER ET TRANSPORTS (Attention: l'adresse et le quartier de ce bien n'ont pas été communiqués par l'annonceur)
POUR VOUS AIDER
Trouvez la CAF à Châtillon sur Cluses
Résidences étudiantes à Châtillon sur Cluses
Trouvez un job à proximité
Financez votre logement
Découvrir Châtillon sur Cluses
A quelles aides avez-vous droit ?
Simulation APL
Signaler un probleme
BIENS SIMILAIRES
Logement étudiant Location T3 Vide Châtillon sur Cluses (74300) Location T3 Vide Châtillon sur Cluses (74300) A partir de 870€
Logement étudiant Location T3 Vide Châtillon sur Cluses (74300) Location T3 Vide Châtillon sur Cluses (74300) A partir de 980€
Logement étudiant Location T3 Vide Châtillon sur Cluses (74300) Location T3 Vide Châtillon sur Cluses (74300) A partir de 816€
Besoin d'un logement à Châtillon sur Cluses ?
Demande d'informations et réservations
Les aides au logement
Financement étudiant
595€ CC