Accueil > Location T2 > Chartres (28000) > 566 €CC

Logement étudiant à Chartres

Calculer vos aides

Location T2 à Chartres - Vide

566€ /mois cc
Ajouter au coup de coeur

Type de location : Location classique - Meublé : NonCalculez votre aide

Disponibilités : 05/11/2025
Disponibilités : 05/11/2025
Visite virtuelle
Logement étudiant T2 à Chartres (28000) 1/2
Disponibilités : 05/11/2025
Afficher le numéro de téléphone
Demande d'informations

Demande d'informations

Délai de réponse moyen: 24-48h

Je n'ai pas de garant
Recevoir les annonces similaires par email

Informations et réservations

Délai de réponse moyen: 24-48h

Je n'ai pas de garant
Recevoir les annonces similaires par email

LE LOGEMENT

Type de réservation:Location classique
Type de bien:T2
Ameublement:Vide
Classe énergétique:NC
GES:NC
Colocation possible:Non

DESCRIPTION

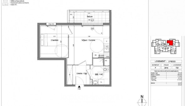
A Chartres dans la résidence LES JARDINS GABRIELLE D'ESTREES, nous vous proposons un T2 ( n° F20 ) idéalement situé à proximité du centre-ville et de toutes commodités. L'appartement de m² se situe au deuxième étage avec ascenseur et comprend : un séjour-cuisine de donnant sur un balcon de m², une salle d'eau avec WC et une chambre de m². Au rez-de-chaussée un double emplacement de parking privé n°584-585. Eau chaude et chauffage individuels au gaz. Eau froide individuelle. Entretien parties communes, ascenseur et espaces verts communs, compris dans les provisions sur charges mensuelles et donnant lieu à une régularisation annuelle. Les honoraires de location, (à la charge du locataire) incluent le montant de rédaction du bail et des états des lieux facturé pour euros TTC, après réalisation lors de l'entrée dans les lieux. Pour plus de détails sur ce logement, vous pouvez consulter la fiche descriptive de ce bien, sur notre site internet AFEDIM.
Les informations sur les risques auxquels ce bien est exposé sont disponibles sur le site Géorisques :
Référence annonce : 1426930096

GARANTIES ACCEPTÉES
Visale
Garantie Studapart
Garant physique
ALERTE MAIL
Définissez la location que vous recherchez et nous vous enverrons par email toutes les annonces correspondantes
QUARTIER ET TRANSPORTS (Attention: l'adresse et le quartier de ce bien n'ont pas été communiqués par l'annonceur)
POUR VOUS AIDER
Trouvez la CAF à Chartres
Résidences étudiantes à Chartres
Trouvez un job à proximité
Financez votre logement
Liste des écoles à proximité
Découvrir Chartres
A quelles aides avez-vous droit ?
Simulation APL
Signaler un probleme
BIENS SIMILAIRES
Logement étudiant Location Studio Meublé Chartres (28000) Location Studio Meublé Chartres (28000) A partir de 568€
Logement étudiant Location T3 Vide Chartres (28000) Location T3 Vide Chartres (28000) A partir de 1 018€
Logement étudiant Location Studio Meublé Chartres (28000) Location Studio Meublé Chartres (28000) A partir de 495€
Besoin d'un logement à Chartres ?
Demande d'informations et réservations
Les aides au logement
Financement étudiant
566€ CC