Accueil > Location T2 > Chambéry (73000) > 732 €CC

Logement étudiant à Chambéry

Calculer vos aides

Location T2 à Chambéry - Vide

732€ /mois cc
Ajouter au coup de coeur

Type de location : Location classique - Meublé : NonCalculez votre aide

Disponibilités : 05/03/2026
Disponibilités : 05/03/2026
Visite virtuelle
Logement étudiant T2 à Chambéry (73000) 1/2
Disponibilités : 05/03/2026
Afficher le numéro de téléphone
Demande d'informations

Demande d'informations

Délai de réponse moyen: 24-48h

Je n'ai pas de garant
Recevoir les annonces similaires par email

Informations et réservations

Délai de réponse moyen: 24-48h

Je n'ai pas de garant
Recevoir les annonces similaires par email

LE LOGEMENT

Type de réservation:Location classique
Type de bien:T2
Ameublement:Vide
Classe énergétique:NC
GES:NC
Colocation possible:Non

DESCRIPTION

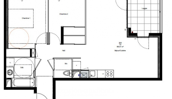
A CHAMBERY, dans la résidence neuve PARC PEROSA, nous vous proposons un appartement T2 n°C111 de 45m². Situé au 2e étage, il comprend un séjour cuisine de ², donnant sur un balcon de ², une chambre de ², et une salle de bain avec WC. Au 1er sous-sol, un emplacement de stationnement n°46. Chauffage et eau chaude collectifs urbain. Entretien parties communes et espaces verts communs, compris dans les provisions sur charges mensuelles et donnant lieu à une régularisation annuelle. Les honoraires de location de 585 euros TTC (à la charge du locataire) incluent le montant de rédaction des états des lieux facturé pour 135 euros TTC, après réalisation lors de l'entrée dans les lieux. Logement neuf en cours de construction - DPE à venir. Disponibilité Février 2026. Plus de détails sur notre site AFEDIM.
Les informations sur les risques auxquels ce bien est exposé sont disponibles sur le site Géorisques :
Référence annonce : 1427192984

GARANTIES ACCEPTÉES
Visale
Garantie Studapart
Garant physique
ALERTE MAIL
Définissez la location que vous recherchez et nous vous enverrons par email toutes les annonces correspondantes
QUARTIER ET TRANSPORTS (Attention: l'adresse et le quartier de ce bien n'ont pas été communiqués par l'annonceur)
POUR VOUS AIDER
Trouvez la CAF à Chambéry
Résidences étudiantes à Chambéry
Trouvez un job à proximité
Financez votre logement
Liste des écoles à proximité
Découvrir Chambéry
A quelles aides avez-vous droit ?
Simulation APL
Signaler un probleme
BIENS SIMILAIRES
Logement étudiant Location T2 Vide Chambéry (73000) Location T2 Vide Chambéry (73000) A partir de 732€
Logement étudiant Location T3 Vide Chambéry (73000) Location T3 Vide Chambéry (73000) A partir de 840€
Logement étudiant Location T4 Vide Barberaz (73000) Location T4 Vide Barberaz (73000) A partir de 810€
Besoin d'un logement à Chambéry ?
Demande d'informations et réservations
Les aides au logement
Financement étudiant
732€ CC