Accueil > Location T2 > Chambéry (73000) > 672 €CC

Logement étudiant à Chambéry

Calculer vos aides

Location T2 à Chambéry - Vide

672€ /mois cc
Ajouter au coup de coeur

Type de location : Location classique - Meublé : NonCalculez votre aide

Disponibilités : 06/12/2025
Disponibilités : 06/12/2025
Visite virtuelle
Logement étudiant T2 à Chambéry (73000) 1/2
Disponibilités : 06/12/2025
Afficher le numéro de téléphone
Demande d'informations

Demande d'informations

Délai de réponse moyen: 24-48h

Je n'ai pas de garant
Recevoir les annonces similaires par email

Informations et réservations

Délai de réponse moyen: 24-48h

Je n'ai pas de garant
Recevoir les annonces similaires par email

LE LOGEMENT

Type de réservation:Location classique
Type de bien:T2
Ameublement:Vide
Classe énergétique:NC
GES:NC
Colocation possible:Non

DESCRIPTION

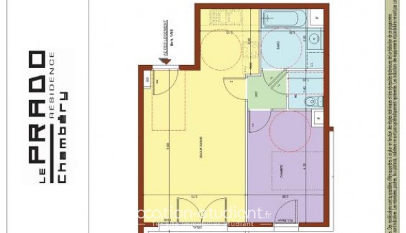
A Chambery, dans la résidence Le Prado, nous vous proposons un appartement T2 n°B103 de m². Au 1er étage du bâtiment B avec ascenseur, il comprend un séjour de 25 m² avec cuisine ouverte aménagé (réfrigérateur top, plaque de cuisson) donnant sur balcon de m², une chambre de m², une salle de bains et WC séparés. Au rez-de-chaussée, entrée D, un garage n°47.
Eau froide et chaude, chauffage collectif gaz, entretien parties communes, ascenseur et espaces verts communs, compris dans les provisions sur charges mensuelles et donnant lieu à une régularisation annuelle. Les honoraires de location sont facturés directement au locataire par le partenaire pour 451 ? TTC. Quant aux honoraires de rédaction des états des lieux, ils sont facturés par AFEDIM Gestion pour 135 ? TTC, après réalisation, lors de l'entrée dans les lieux. Plus de détails sur notre site internet AFEDIM.
Les informations sur les risques auxquels ce bien est exposé sont disponibles sur le site Géorisques :
Référence annonce : 1427000356

GARANTIES ACCEPTÉES
Visale
Garantie Studapart
Garant physique
ALERTE MAIL
Définissez la location que vous recherchez et nous vous enverrons par email toutes les annonces correspondantes
QUARTIER ET TRANSPORTS (Attention: l'adresse et le quartier de ce bien n'ont pas été communiqués par l'annonceur)
POUR VOUS AIDER
Trouvez la CAF à Chambéry
Résidences étudiantes à Chambéry
Trouvez un job à proximité
Financez votre logement
Liste des écoles à proximité
Découvrir Chambéry
A quelles aides avez-vous droit ?
Simulation APL
Signaler un probleme
BIENS SIMILAIRES
Logement étudiant Location T3 Vide Chambéry (73000) Location T3 Vide Chambéry (73000) A partir de 736€
Logement étudiant Location T4 Vide Barberaz (73000) Location T4 Vide Barberaz (73000) A partir de 1 300€
Logement étudiant Location Studio Vide Barberaz (73000) Location Studio Vide Barberaz (73000) A partir de 630€
Besoin d'un logement à Chambéry ?
Demande d'informations et réservations
Les aides au logement
Financement étudiant
672€ CC