Accueil > Location T2 > Cergy (95000) > 994 €CC

Logement étudiant à Cergy

Calculer vos aides

Location T2 à Cergy - Vide

994€ /mois cc
Ajouter au coup de coeur

Type de location : Location classique - Meublé : NonCalculez votre aide

Disponibilités : 03/04/2026
Disponibilités : 03/04/2026
Visite virtuelle
Logement étudiant T2 à Cergy (95000) 1/2
Disponibilités : 03/04/2026
Afficher le numéro de téléphone
Demande d'informations

Demande d'informations

Délai de réponse moyen: 24-48h

Je n'ai pas de garant
Recevoir les annonces similaires par email

Informations et réservations

Délai de réponse moyen: 24-48h

Je n'ai pas de garant
Recevoir les annonces similaires par email

LE LOGEMENT

Type de réservation:Location classique
Type de bien:T2
Ameublement:Vide
Classe énergétique:NC
GES:NC
Colocation possible:Non

DESCRIPTION

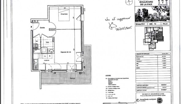
A CERGY, résidence "LA RUCHE", bénéficiant de toutes les commodités, d'une situation idéale et d'une qualité de vie remarquable, T2 n°425 (lot 113) de ² situé au 2ème étage avec ascenseur. Il se compose d'une entrée, d'une pièce à vivre avec cuisine équipée (plaque vitrocéramique, meuble sous évier) sur balcon de ² exposé sud-est, d'une chambre, d'une salle de bain et d'un WC. Au premier sous sol, un parking n°1051 (lot 309). Chauffage urbain (collectif). Eau collective.
Les honoraires de location TTC (à la charge du locataire) incluent le montant de rédaction des états des lieux facturé pour 138 euros TTC, après réalisation lors de l'entrée dans les lieux. Pour plus de détails sur ce logement, vous pouvez consulter la fiche descriptive de ce bien, sur votre site internet AFEDIM.
Les informations sur les risques auxquels ce bien est exposé sont disponibles sur le site Géorisques :
Référence annonce : 1427257829

BIENS SIMILAIRES
Logement étudiant Location Studio Meublé Cergy (95000) Location Studio Meublé Cergy (95000) A partir de 750€
Logement étudiant Location Studio Meublé Cergy (95000) Location Studio Meublé Cergy (95000) A partir de 750€
Logement étudiant Location T3 Meublé Cergy (95000) Location T3 Meublé Cergy (95000) A partir de 1 290€
GARANTIES ACCEPTÉES
Visale
Garantie Studapart
Garant physique
ALERTE MAIL
Définissez la location que vous recherchez et nous vous enverrons par email toutes les annonces correspondantes
QUARTIER ET TRANSPORTS (Attention: l'adresse et le quartier de ce bien n'ont pas été communiqués par l'annonceur)
POUR VOUS AIDER
Trouvez la CAF à Cergy
Résidences étudiantes à Cergy
Trouvez un job à proximité
Financez votre logement
Liste des écoles à proximité
Découvrir Cergy
A quelles aides avez-vous droit ?
Simulation APL
Signaler un probleme
BIENS SIMILAIRES
Logement étudiant Location Studio Meublé Cergy (95000) Location Studio Meublé Cergy (95000) A partir de 750€
Logement étudiant Location Studio Meublé Cergy (95000) Location Studio Meublé Cergy (95000) A partir de 750€
Logement étudiant Location T5 Vide Boisemont (95000) Location T5 Vide Boisemont (95000) A partir de 500€
Besoin d'un logement à Cergy ?
Demande d'informations et réservations
Les aides au logement
Financement étudiant
994€ CC