Accueil > Location T2 > Bezannes (51430) > 390 €CC

Logement étudiant à Bezannes

Calculer vos aides

Location T2 à Bezannes - Vide

390€ /mois cc
Ajouter au coup de coeur

Type de location : Location classique - Meublé : NonCalculez votre aide

Disponibilités : 24/04/2026
Disponibilités : 24/04/2026
Visite virtuelle
Logement étudiant T2 à Bezannes (51430) 1/2
Disponibilités : 24/04/2026
Afficher le numéro de téléphone
Demande d'informations

Demande d'informations

Délai de réponse moyen: 24-48h

Je n'ai pas de garant
Recevoir les annonces similaires par email

Informations et réservations

Délai de réponse moyen: 24-48h

Je n'ai pas de garant
Recevoir les annonces similaires par email

LE LOGEMENT

Type de réservation:Location classique
Type de bien:T2
Ameublement:Vide
Classe énergétique:NC
GES:NC
Colocation possible:Non

DESCRIPTION

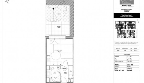
BEZANNES. Proximité de la gare TGV, du Tram et des axes routiers. Dans la résidence AU FIL DE L EAU, vous est proposé un appartement de type 1 (n°) de 27m² sis au RDC. Séjour avec espace cuisine donnant sur une terrasse de 8m² et un jardin de 20m². Entrée avec placard desservant le séjour et la salle d'eau avec douche, WC et meuble vasque. Eau froide individuelle, chauffage et eau chaude par chaudière gaz à condensation. Entretien parties communes, entretien ascenseur et espaces verts communs, compris dans les provisions sur charges mensuelles et donnant lieu à une régularisation annuelle. Logement disponible à partir du 16/05/2026. Les honoraires de location de 308 euros TTC (à la charge du locataire) incluent le montant de rédaction des états des lieux facturé pour 84,00 euros TTC, après réalisation lors de l'entrée dans les lieux. Pour plus de détails sur ce logement, vous pouvez consulter la fiche descriptive de ce bien, sur notre site internet AFEDIM.
Les informations sur les risques auxquels ce bien est exposé sont disponibles sur le site Géorisques :
Référence annonce : 1427303720

GARANTIES ACCEPTÉES
Visale
Garantie Studapart
Garant physique
ALERTE MAIL
Définissez la location que vous recherchez et nous vous enverrons par email toutes les annonces correspondantes
QUARTIER ET TRANSPORTS (Attention: l'adresse et le quartier de ce bien n'ont pas été communiqués par l'annonceur)
POUR VOUS AIDER
Trouvez la CAF à Bezannes
Résidences étudiantes à Bezannes
Trouvez un job à proximité
Financez votre logement
Découvrir Bezannes
A quelles aides avez-vous droit ?
Simulation APL
Signaler un probleme
BIENS SIMILAIRES
Logement étudiant Location T3 Vide Bezannes (51430) Location T3 Vide Bezannes (51430) A partir de 804€
Logement étudiant Location T2 Vide Tinqueux (51430) Location T2 Vide Tinqueux (51430) A partir de 680€
Logement étudiant Location T3 Vide Bezannes (51430) Location T3 Vide Bezannes (51430) A partir de 855€
Besoin d'un logement à Bezannes ?
Demande d'informations et réservations
Les aides au logement
Financement étudiant
390€ CC