Accueil > Location T2 > Bezannes (51430) > 774 €CC

Logement étudiant à Bezannes

Calculer vos aides

Location T2 à Bezannes - Vide

774€ /mois cc
Ajouter au coup de coeur

Type de location : Location classique - Meublé : NonCalculez votre aide

Disponibilités : 26/03/2026
Disponibilités : 26/03/2026
Visite virtuelle
Logement étudiant T2 à Bezannes (51430) 1/2
Disponibilités : 26/03/2026
Afficher le numéro de téléphone
Demande d'informations

Demande d'informations

Délai de réponse moyen: 24-48h

Je n'ai pas de garant
Recevoir les annonces similaires par email

Informations et réservations

Délai de réponse moyen: 24-48h

Je n'ai pas de garant
Recevoir les annonces similaires par email

LE LOGEMENT

Type de réservation:Location classique
Type de bien:T2
Ameublement:Vide
Classe énergétique:NC
GES:NC
Colocation possible:Non

DESCRIPTION

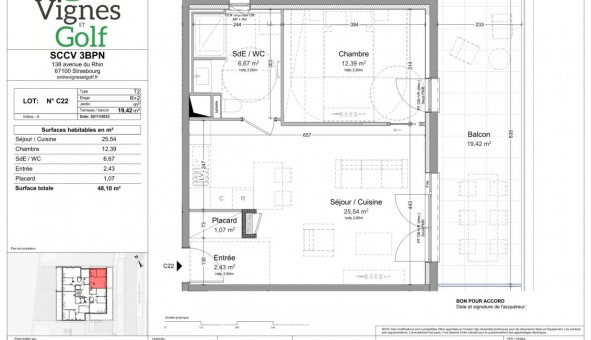
BEZANNES, dans la résidence ENTRE VIGNES ET GOLF, nous vous proposons un appartement type T2 N°C22 de 48,3m0² avec un balcon de 19,42m². Situé au 1er étage avec ascenseur, il comprend : une entrée avec placard, un séjour - salon avec une cuisine ouverte de 25,54m², une chambre de 12,3m², une salle d'eau avec WC. Une place de parking en sous-sol n°PS21.
Chauffage et eau chaude collectif par pompe à chaleur. Eau froide, entretien parties communes, ascenseur et espaces verts communs, sont compris dans les provisions sur charges mensuelles et donnant lieu à une régularisation annuelle. Les honoraires de location 388? TTC (à la charge du locataire) incluent le montant de rédaction des états des lieux facturé pour 145 euros TTC, après réalisation lors de l'entrée dans les lieux. Le règlement des honoraires état des lieux d'entrée est à adresser avec le bail signé à Afedim Gestion.
Logement neuf en cours de construction - DPE à venir
Les informations sur les risques auxquels ce bien est exposé sont disponibles sur le site Géorisques :
Référence annonce : 1427242317

GARANTIES ACCEPTÉES
Visale
Garantie Studapart
Garant physique
ALERTE MAIL
Définissez la location que vous recherchez et nous vous enverrons par email toutes les annonces correspondantes
QUARTIER ET TRANSPORTS (Attention: l'adresse et le quartier de ce bien n'ont pas été communiqués par l'annonceur)
POUR VOUS AIDER
Trouvez la CAF à Bezannes
Résidences étudiantes à Bezannes
Trouvez un job à proximité
Financez votre logement
Découvrir Bezannes
A quelles aides avez-vous droit ?
Simulation APL
Signaler un probleme
BIENS SIMILAIRES
Logement étudiant Location T2 Vide Tinqueux (51430) Location T2 Vide Tinqueux (51430) A partir de 700€
Logement étudiant Location T3 Vide Bezannes (51430) Location T3 Vide Bezannes (51430) A partir de 727€
Logement étudiant Location T2 Vide Bezannes (51430) Location T2 Vide Bezannes (51430) A partir de 750€
Besoin d'un logement à Bezannes ?
Demande d'informations et réservations
Les aides au logement
Financement étudiant
774€ CC