Accueil > Location T2 > Berck (62600) > 512 €CC

Logement étudiant à Berck

Calculer vos aides

Location T2 à Berck - Vide

512€ /mois cc
Ajouter au coup de coeur

Type de location : Location classique - Meublé : NonCalculez votre aide

Disponibilités : 12/04/2026
Disponibilités : 12/04/2026
Visite virtuelle
Logement étudiant T2 à Berck (62600) 1/2
Disponibilités : 12/04/2026
Afficher le numéro de téléphone
Demande d'informations

Demande d'informations

Délai de réponse moyen: 24-48h

Je n'ai pas de garant
Recevoir les annonces similaires par email

Informations et réservations

Délai de réponse moyen: 24-48h

Je n'ai pas de garant
Recevoir les annonces similaires par email

LE LOGEMENT

Type de réservation:Location classique
Type de bien:T2
Ameublement:Vide
Classe énergétique:NC
GES:NC
Colocation possible:Non

DESCRIPTION

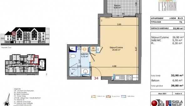
A BERCK, dans un environnement calme, nous vous proposons dans la résidence ESTRAN, un appartement T1 de m². Situé au 3ème étage avec ascenseur, il comprend un séjour de m² avec cuisine ouverte donnant sur un balcon de m², une salle d'eau et un WC. En intérieur, un garage et une cave/local vélo privatif. Chauffage et eau chaude individuels gaz. Entretien parties communes, ascenseur et espaces verts communs, compris dans les provisions sur charges mensuelles et donnant lieu à une régularisation annuelle. Les honoraires de location TTC (à la charge du locataire) incluent le montant de rédaction des états des lieux facturé pour 99,00 euros TTC, après réalisation lors de l'entrée dans les lieux. Pour plus de détails sur ce logement, vous pouvez consulter la fiche descriptive de ce bien, sur notre site internet AFEDIM.
Les informations sur les risques auxquels ce bien est exposé sont disponibles sur le site Géorisques :
Référence annonce : 1427277980

GARANTIES ACCEPTÉES
Visale
Garantie Studapart
Garant physique
ALERTE MAIL
Définissez la location que vous recherchez et nous vous enverrons par email toutes les annonces correspondantes
QUARTIER ET TRANSPORTS (Attention: l'adresse et le quartier de ce bien n'ont pas été communiqués par l'annonceur)
POUR VOUS AIDER
Trouvez la CAF à Berck
Résidences étudiantes à Berck
Trouvez un job à proximité
Financez votre logement
Liste des écoles à proximité
Découvrir Berck
A quelles aides avez-vous droit ?
Simulation APL
Signaler un probleme
BIENS SIMILAIRES
Logement étudiant Location T2 Vide Berck (62600) Location T2 Vide Berck (62600) A partir de 695€
Logement étudiant Location Studio Vide Berck (62600) Location Studio Vide Berck (62600) A partir de 540€
Logement étudiant Location T3 Vide Berck (62600) Location T3 Vide Berck (62600) A partir de 990€
Besoin d'un logement à Berck ?
Demande d'informations et réservations
Les aides au logement
Financement étudiant
512€ CC