Accueil > Location T2 > Berck (62600) > 498 €CC

Logement étudiant à Berck

Calculer vos aides

Location T2 à Berck - Vide

498€ /mois cc
Ajouter au coup de coeur

Type de location : Location classique - Meublé : NonCalculez votre aide

Disponibilités : 20/03/2026
Disponibilités : 20/03/2026
Visite virtuelle
Logement étudiant T2 à Berck (62600) 1/2
Disponibilités : 20/03/2026
Afficher le numéro de téléphone
Demande d'informations

Demande d'informations

Délai de réponse moyen: 24-48h

Je n'ai pas de garant
Recevoir les annonces similaires par email

Informations et réservations

Délai de réponse moyen: 24-48h

Je n'ai pas de garant
Recevoir les annonces similaires par email

LE LOGEMENT

Type de réservation:Location classique
Type de bien:T2
Ameublement:Vide
Classe énergétique:NC
GES:NC
Colocation possible:Non

DESCRIPTION

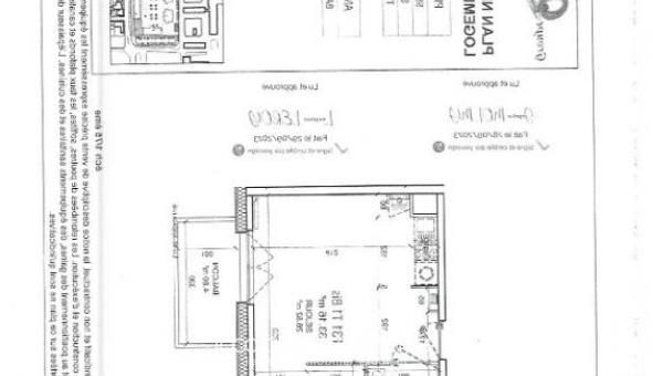
BERCK, idéalement situé au bout de la digue et proche du centre, dans " LA RESIDENCE ALTEIA ", appartement T1 bis n° F31 de m². Situé au 3ème étage avec ascenseur, il comprend : un séjour avec cuisine A/E (plaque induction, four, hotte, meubles) donnant sur une balcon de m² et une salle d'eau avec WC. À l'extérieur, une place de stationnement n°S1-59. Eau chaude et chauffage (individuel). Entretien parties communes, entretien ascenseur et espaces verts communs, compris dans les provisions sur charges mensuelles et donnant lieu à une régularisation annuelle. Les honoraires de location 434euros TTC (à la charge du locataire) incluent le montant de rédaction des états des lieux facturé pour 100euros TTC, après réalisation lors de l'entrée dans les lieux. Disponible le 12/04/2026. Pour plus de détails sur ce logement, vous pouvez consulter la fiche descriptive de ce bien, sur votre site internet AFEDIM.
Les informations sur les risques auxquels ce bien est exposé sont disponibles sur le site Géorisques :
Référence annonce : 1427228734

GARANTIES ACCEPTÉES
Visale
Garantie Studapart
Garant physique
ALERTE MAIL
Définissez la location que vous recherchez et nous vous enverrons par email toutes les annonces correspondantes
QUARTIER ET TRANSPORTS (Attention: l'adresse et le quartier de ce bien n'ont pas été communiqués par l'annonceur)
POUR VOUS AIDER
Trouvez la CAF à Berck
Résidences étudiantes à Berck
Trouvez un job à proximité
Financez votre logement
Liste des écoles à proximité
Découvrir Berck
A quelles aides avez-vous droit ?
Simulation APL
Signaler un probleme
BIENS SIMILAIRES
Logement étudiant Location T2 Vide Berck (62600) Location T2 Vide Berck (62600) A partir de 630€
Logement étudiant Location T3 Vide Berck (62600) Location T3 Vide Berck (62600) A partir de 610€
Logement étudiant Location T1 Vide Berck (62600) Location T1 Vide Berck (62600) A partir de 2 000€
Besoin d'un logement à Berck ?
Demande d'informations et réservations
Les aides au logement
Financement étudiant
498€ CC