Accueil > Location T2 > Bayonne (64100) > 747 €CC

Logement étudiant à Bayonne

Calculer vos aides

Location T2 à Bayonne - Vide

747€ /mois cc
Ajouter au coup de coeur

Type de location : Location classique - Meublé : NonCalculez votre aide

Disponibilités : 26/12/2025
Disponibilités : 26/12/2025
Visite virtuelle
Logement étudiant T2 à Bayonne (64100) 1/1
Disponibilités : 26/12/2025
Afficher le numéro de téléphone
Demande d'informations

Demande d'informations

Délai de réponse moyen: 24-48h

Je n'ai pas de garant
Recevoir les annonces similaires par email

Informations et réservations

Délai de réponse moyen: 24-48h

Je n'ai pas de garant
Recevoir les annonces similaires par email

LE LOGEMENT

Type de réservation:Location classique
Type de bien:T2
Ameublement:Vide
Classe énergétique:NC
GES:NC
Colocation possible:Non

DESCRIPTION

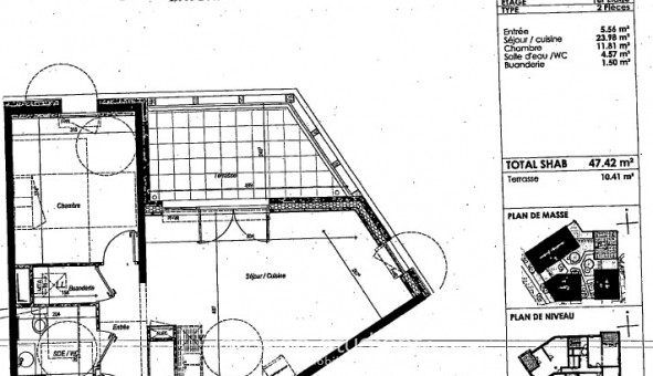
BAYONNE, dans la résidence ENEA, un appartement de type 2 de ² au 1er étage comprenant une entrée, un séjour cuisine donnant sur une terrasse, une chambre de ², une salle de bain avec WC de ², une buanderie. Parking au sous sol. Chauffage, eau chaude, eau froide et entretien des parties communes compris dans les provisions sur charges mensuelles et donnant lieu à une régularisation annuelle. Disponibilité immédiate. Le montant des honoraires de rédaction des états des lieux facturé par AFEDIM Gestion pour 142,00 euros TTC, après réalisation, lors de l'entrée dans les lieux. Pour plus d'informations consulter notre site internet AFEDIM. Logement neuf, DPE à venir.
Les informations sur les risques auxquels ce bien est exposé sont disponibles sur le site Géorisques :
Référence annonce : 1427046245

GARANTIES ACCEPTÉES
Visale
Garantie Studapart
Garant physique
ALERTE MAIL
Définissez la location que vous recherchez et nous vous enverrons par email toutes les annonces correspondantes
QUARTIER ET TRANSPORTS (Attention: l'adresse et le quartier de ce bien n'ont pas été communiqués par l'annonceur)
POUR VOUS AIDER
Trouvez la CAF à Bayonne
Résidences étudiantes à Bayonne
Trouvez un job à proximité
Financez votre logement
Liste des écoles à proximité
Découvrir Bayonne
A quelles aides avez-vous droit ?
Simulation APL
Signaler un probleme
BIENS SIMILAIRES
Logement étudiant Location T2 Vide Bayonne (64100) Location T2 Vide Bayonne (64100) A partir de 950€
Logement étudiant Location T3 Vide Bayonne (64100) Location T3 Vide Bayonne (64100) A partir de 718€
Logement étudiant Location T2 Vide Bayonne (64100) Location T2 Vide Bayonne (64100) A partir de 559€
Besoin d'un logement à Bayonne ?
Demande d'informations et réservations
Les aides au logement
Financement étudiant
747€ CC