Accueil > Location T2 > Bayonne (64100) > 659 €CC

Logement étudiant à Bayonne

Calculer vos aides

Location T2 à Bayonne - Vide

659€ /mois cc
Ajouter au coup de coeur

Type de location : Location classique - Meublé : NonCalculez votre aide

Disponibilités : 09/10/2025
Disponibilités : 09/10/2025
Visite virtuelle
Logement étudiant T2 à Bayonne (64100) 1/2
Disponibilités : 09/10/2025
Afficher le numéro de téléphone
Demande d'informations

Demande d'informations

Délai de réponse moyen: 24-48h

Je n'ai pas de garant
Recevoir les annonces similaires par email

Informations et réservations

Délai de réponse moyen: 24-48h

Je n'ai pas de garant
Recevoir les annonces similaires par email

LE LOGEMENT

Type de réservation:Location classique
Type de bien:T2
Ameublement:Vide
Classe énergétique:NC
GES:NC
Colocation possible:Non

DESCRIPTION

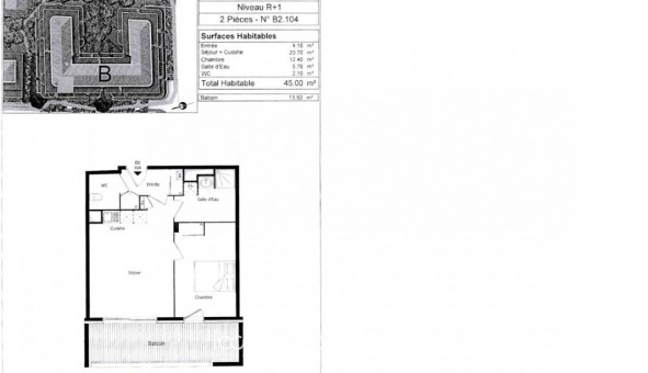
A Bayonne. RESIDENCE Baiona Bihotza. Nous vous proposons un appartement T2 d'une superficie de ² situé au 1er étage avec ascenseur, comprenant : un séjour d'environ ² avec coin cuisine aménagé et équipé (hotte, plaque de cuisson), un balcon de ², une chambre, une salle d'eau avec WC. Au sous-sol, un parking n°113. Eau chaude et chauffage individuel au gaz. Entretien parties communes, entretien ascenseur et espaces verts communs, compris dans les provisions sur charges mensuelles et donnant lieu à une régularisation annuelle. Les honoraires de location TTC (à la charge du locataire) incluent le montant de rédaction des états des lieux facturé pour euros TTC, après réalisation lors de l'entrée dans les lieux. Disponibilité immédiate. Pour plus de détails sur ce logement, vous pouvez consulter la fiche descriptive de ce bien, sur votre site internet AFEDIM
Les informations sur les risques auxquels ce bien est exposé sont disponibles sur le site Géorisques :
Référence annonce : 1426856219

BIENS SIMILAIRES
Logement étudiant Location T3 Meublé Bayonne (64100) Location T3 Meublé Bayonne (64100) A partir de 700€
Logement étudiant Location T3 Meublé Bayonne (64100) Location T3 Meublé Bayonne (64100) A partir de 920€
Logement étudiant Location T2 Meublé Bayonne (64100) Location T2 Meublé Bayonne (64100) A partir de 550€
GARANTIES ACCEPTÉES
Visale
Garantie Studapart
Garant physique
ALERTE MAIL
Définissez la location que vous recherchez et nous vous enverrons par email toutes les annonces correspondantes
QUARTIER ET TRANSPORTS (Attention: l'adresse et le quartier de ce bien n'ont pas été communiqués par l'annonceur)
POUR VOUS AIDER
Trouvez la CAF à Bayonne
Résidences étudiantes à Bayonne
Trouvez un job à proximité
Financez votre logement
Liste des écoles à proximité
Découvrir Bayonne
A quelles aides avez-vous droit ?
Simulation APL
Signaler un probleme
BIENS SIMILAIRES
Logement étudiant Location Studio Vide Bayonne (64100) Location Studio Vide Bayonne (64100) A partir de 675€
Logement étudiant Location T3 Vide Bayonne (64100) Location T3 Vide Bayonne (64100) A partir de 752€
Logement étudiant Location T3 Vide Bayonne (64100) Location T3 Vide Bayonne (64100) A partir de 742€
Besoin d'un logement à Bayonne ?
Demande d'informations et réservations
Les aides au logement
Financement étudiant
659€ CC